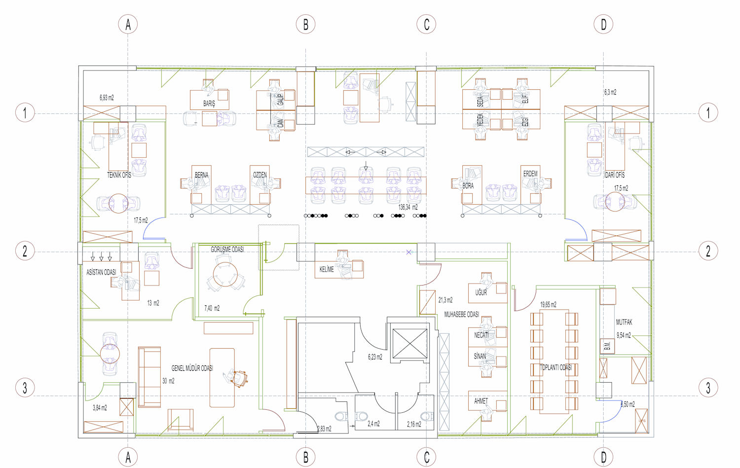
Mimari Yerleşim Planı
20/20
Paylaş
Resmi Orjinal Boyutunda Göster
DİEM Mühendislik Mimarlık Ofisi
Fotoğraflar: Gürkan Akay
Project Location: Batı Ataşehir, İstanbul
Project Office: DİEM Mühendislik Mimarlık
Project Type: Offices
Tasarım Ekibi: Ahmet Emiroğlu, Elif Günay, Didem Şamlı
Project Start Date: 2011
Project End Date: 2011
Construction Start Date: 2011
Construction End Date: 2011
Total Construction Area: 350 m²