16/24
Paylaş
Resmi Orjinal Boyutunda Göster
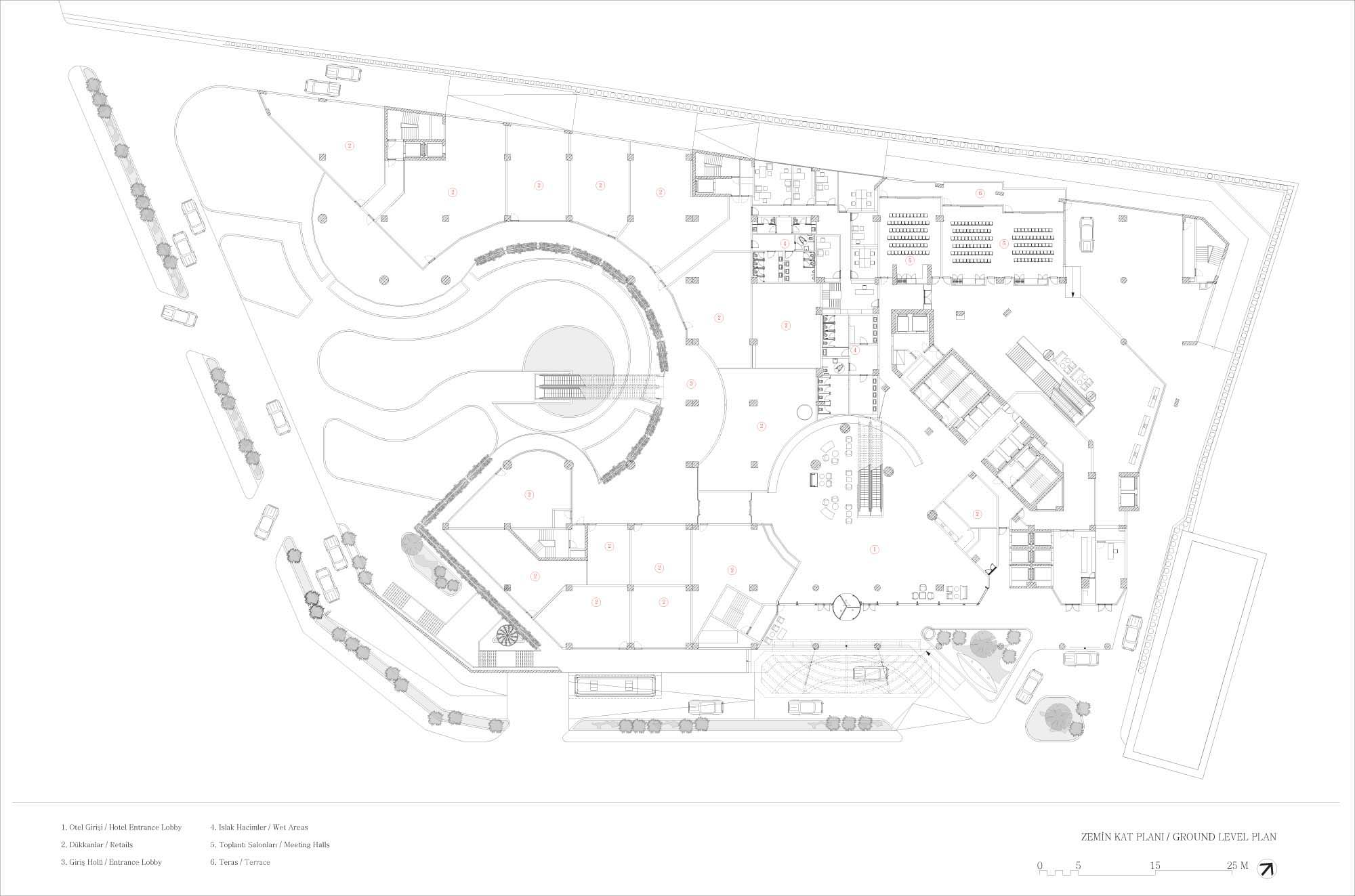
Wyndham Grand Istanbul Europe
Project Location: İstanbul, Bağcılar
Project Office: Piramit Mimarlık
Project Type: Hotel / Motel
Proje Tipi Grubu: Konaklama
Employer: Petek Tekstil
Photography: Yercekim Mimari Fotograf
Construction End Date: 2013
Total Construction Area: 30,000 m²