17/17
Paylaş
Resmi Orjinal Boyutunda Göster
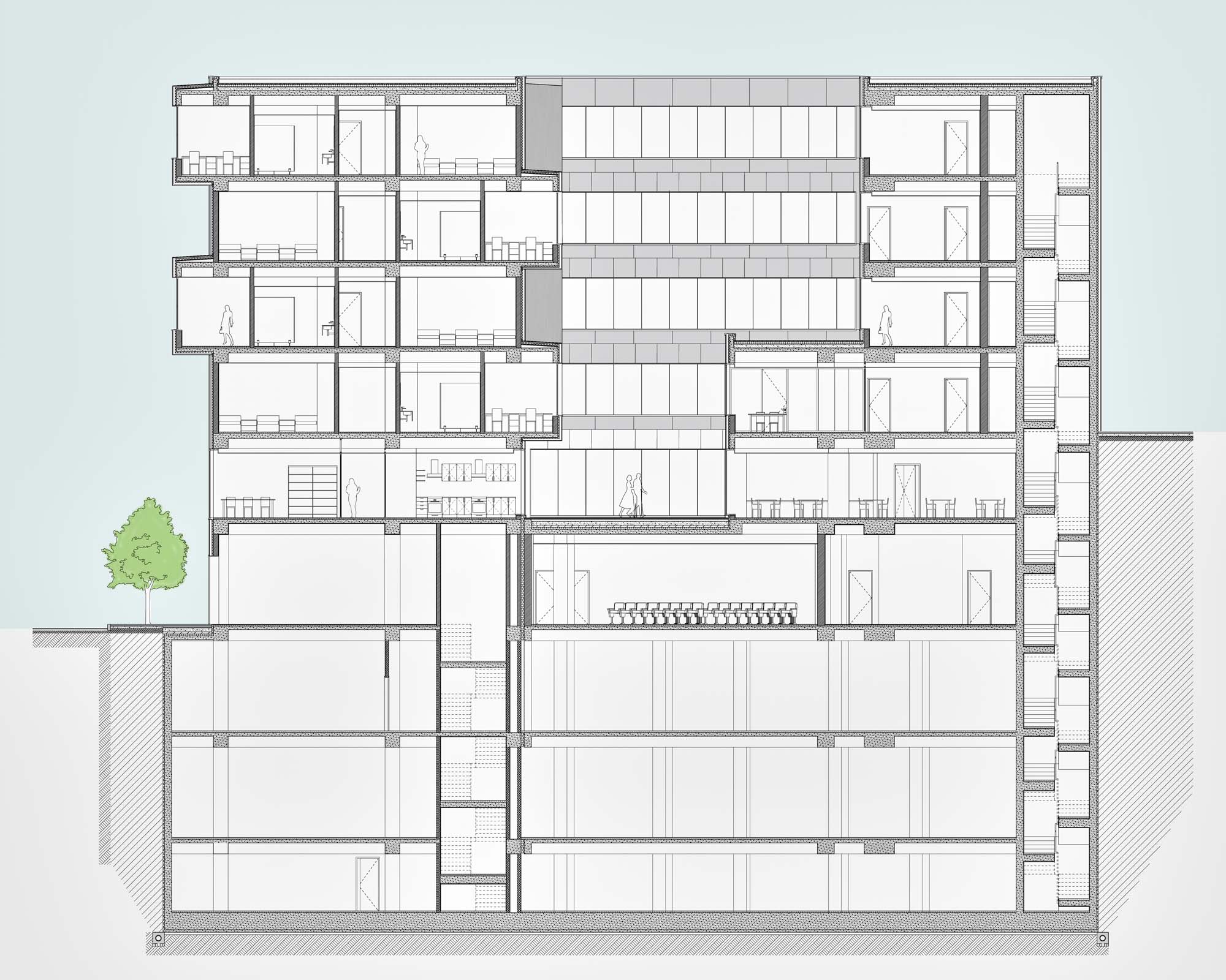
Beşiktaş Dikilitaş Gençlik Merkezi
Proje Yeri: Beşiktaş, İstanbul
Proje Ofisi: UrbAr Kentleşme ve Mimarlık
Proje Tipi: Yurt / Konukevi, Otopark
Proje Tipi Grubu: Konaklama
Tasarım Ekibi: Ali Kural
İşveren: İstanbul Büyükşehir Belediyesi
Yardımcı: Sezin Taner, Seda Tuğutlu, Meltem Kanar
Ana Yüklenici: Çevre Mühendislik
Statik Projesi: Yüksel Proje Uluslararası A.Ş.
Mekanik Projesi: Yüksel Proje Uluslararası A.Ş.
Elektrik Projesi: Yüksel Proje Uluslararası A.Ş.
Proje Başlangıç Yılı: 2015
Proje Bitiş Yılı: 2016
İnşaat Başlangıç Yılı: 2017
İnşaat Bitiş Yılı: 2019
Arsa Alanı: 1,898 m2
Toplam İnşaat Alanı: 8,417 m2