6/14
Paylaş
Resmi Orjinal Boyutunda Göster
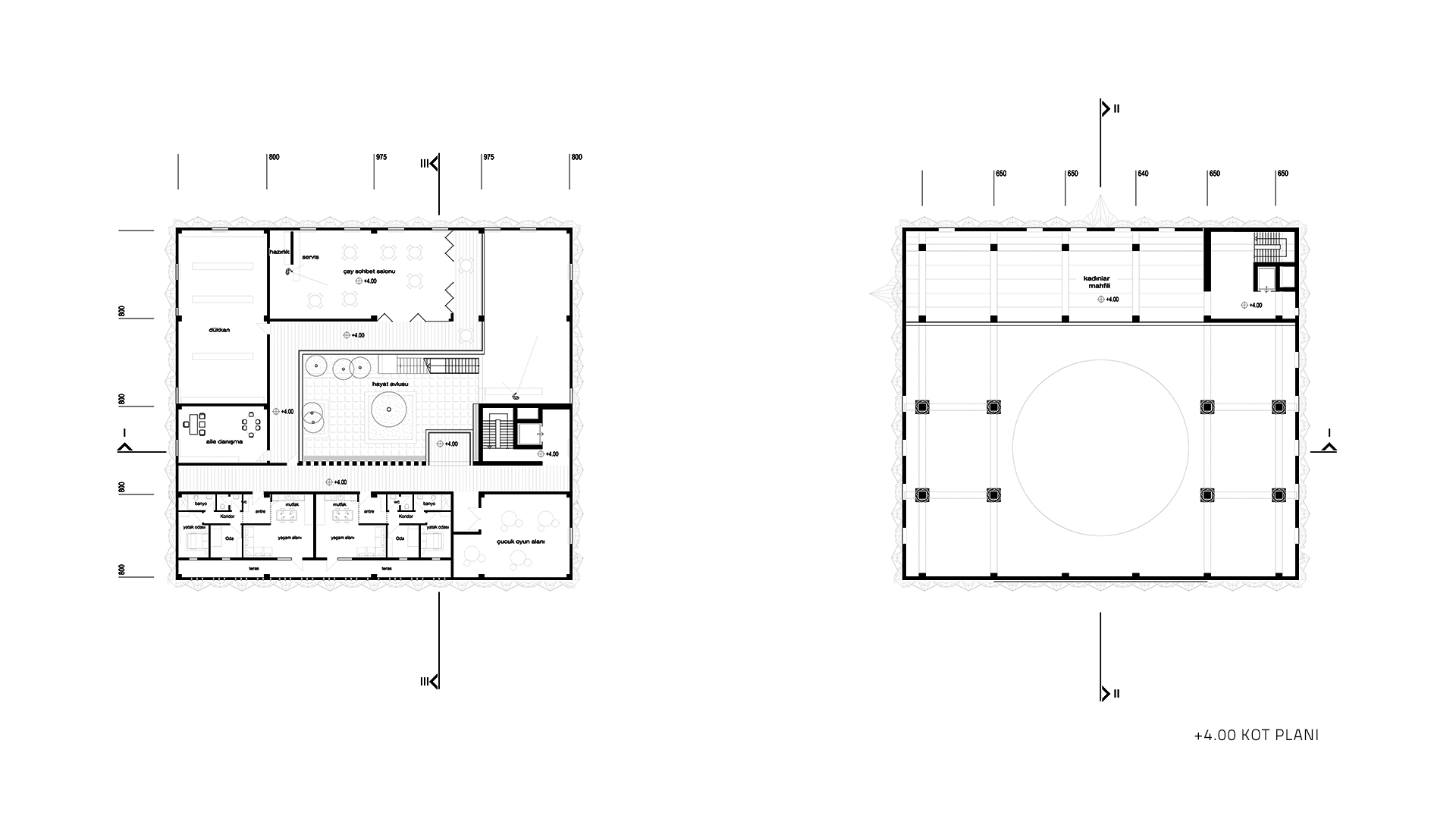
Katılımcı (OFİS MPU), Cami Tasarımı Fikir Yarışması
Proje Yeri: Gaziantep
Proje Ofisi: Ofis MPU
Proje Tipi: Cami / Mescit
Proje Tipi Grubu: Katılımcı
Tasarım Ekibi: İsmail Ruhlukürkçü, Güntülü Gündoğ, Mustafa Şarkışla, Mehmet Bilgil, Okan Koçgürbüz