11/11
Paylaş
Resmi Orjinal Boyutunda Göster
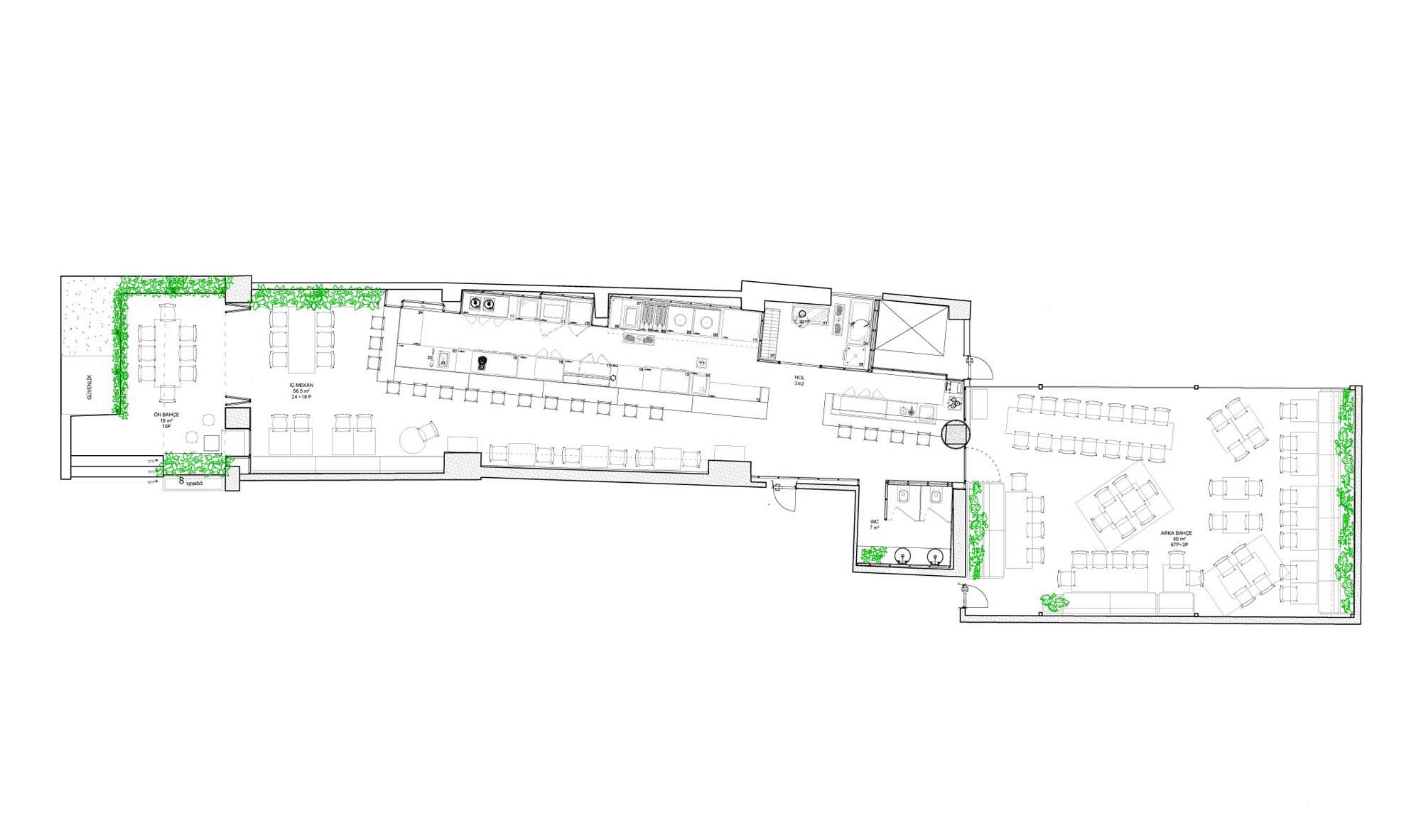
Ahali Teşvikiye
Proje Yeri: Şişli, İstanbul
Proje Ofisi: SOTO İç Mimarlık ve Kreatif Danışmanlık
Proje Tipi: Restoran / Kafe / Bar
Proje Tipi Grubu: Ticari
Tasarım Ekibi: Dicle Begüm Arslan, Hatice Küstür
Peyzaj Mimarlığı: SOTO İç Mimarlık ve Kreatif Danışmanlık, Albenian Gardens Peyzaj
Aydınlatma Projesi: SOTO İç Mimarlık ve Kreatif Danışmanlık, Öztaş Aydınlatma
Fotoğraf: Büşra Yeltekin
Proje Başlangıç Yılı: 2017
Proje Bitiş Yılı: 2017
İnşaat Bitiş Yılı: 2017
Arsa Alanı: 2017
Toplam İnşaat Alanı: 220 m²