31/34
Paylaş
Resmi Orjinal Boyutunda Göster
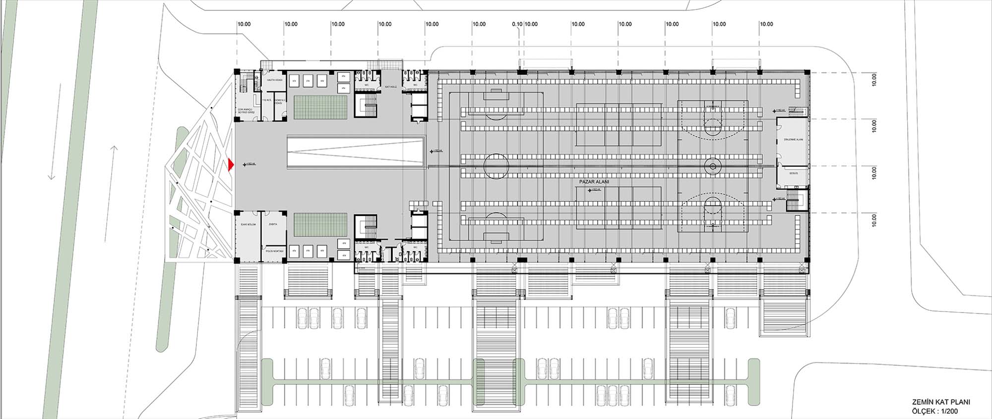
Çorlu Belediyesi Atakent Kapalı Pazaryeri
Proje Yeri: Çorlu, Tekirdağ
Proje Ofisi: Megaron Mimarlık
Proje Tipi: Pazar Yeri
Proje Tipi Grubu: Kamu
Tasarım Ekibi: Harun Çalışkan, Banu Çalışkan, Cemile Yılmaz, Süleyman Türk, Ezgi İyidoğan, Tuğçe Türe
İşveren: Çorlu Belediyesi
Toplam İnşaat Alanı: 11,013 m2