46/54
Paylaş
Resmi Orjinal Boyutunda Göster
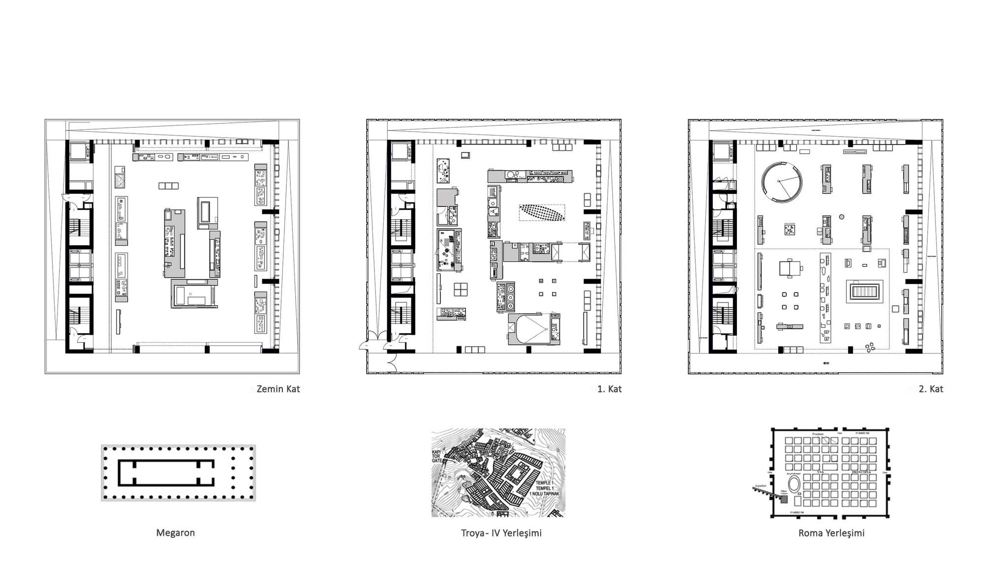
Troya Müzesi
Proje Yeri: Çanakkale
Proje Ofisi: Yalın Mimarlık
Proje Tipi: Müze
Proje Tipi Grubu: Kültür
Tasarım Ekibi: Ömer Selçuk Baz, Okan Bal, Ozan Elter, Ece Özdür, Ege Battal, Cihan Poçan, Tuğgen Kukul, Firdevs Ermiş, Pelin Yıldız, Deniz Ünsal, Lebriz Atan Karaatlı, Burçin Akcan, Cristina Rizzello
İşveren: Kültür ve Turizm Bakanlığı
Danışman: Rüstem Aslan
Peyzaj Mimarlığı: Cemal Omak, Tülay Tosun
Aydınlatma Projesi: ALD Aydınlatma
Grafik Tasarım: Pompaa
Statik Projesi: Fonksiyon Mühendislik
Mekanik Projesi: Moskay Mühendislik
Elektrik Projesi: FDC Mühendislik
Altyapı Projesi: Cumhur Kabasakal
Yangın Güvenlik Danışmanı: Kazım Beceren
Fotoğraf: Murat Germen, Studio Rino, Emre Dörter
Mimari Mesleki Kontrollük: Yalın Mimarlık
Proje Başlangıç Yılı: 2011
Proje Bitiş Yılı: 2013
İnşaat Başlangıç Yılı: 2013
İnşaat Bitiş Yılı: 2018
Arsa Alanı: 110,000 m²
Toplam İnşaat Alanı: 11.000 m²