16/22
Paylaş
Resmi Orjinal Boyutunda Göster
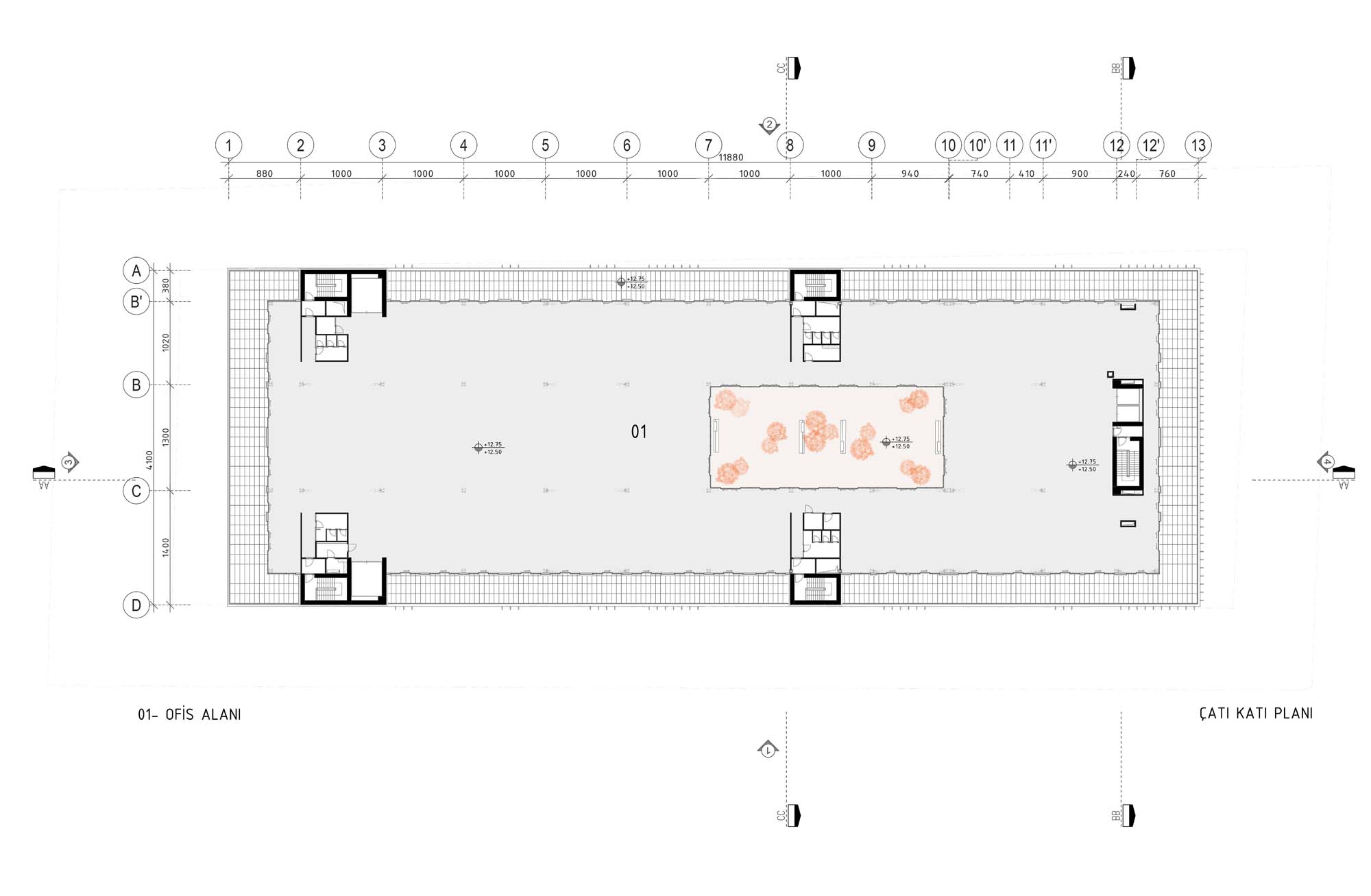
Sarıtaş Ofis ve Fabrika Yapısı
Proje Yeri: İstanbul
Proje Ofisi: WE're
Proje Tipi: Ofis
Proje Tipi Grubu: Ticari
Tasarım Ekibi: Ali Önalp, Burak Yardımcı
İşveren: Sarıtaş Çelik
Yardımcı: Burak Koç, Hüseyin Kadıoğlu
Ana Yüklenici: Berko İnşaat
Statik Projesi: Doruk Mühendislik
Mekanik Projesi: Avrasya Dizayn Proje Danışmanlık
Elektrik Projesi: Avrasya Dizayn Proje Danışmanlık
Çelik Projesi: Doruk Mühendislik
Fotoğraf: Studio Majo, Burak Yardımcı
Proje Başlangıç Yılı: 2017
Proje Bitiş Yılı: 2018
İnşaat Başlangıç Yılı: 2018
İnşaat Bitiş Yılı: 2019
Arsa Alanı: 9,800 m²
Toplam İnşaat Alanı: 25,000 m2