67/73
Paylaş
Resmi Orjinal Boyutunda Göster
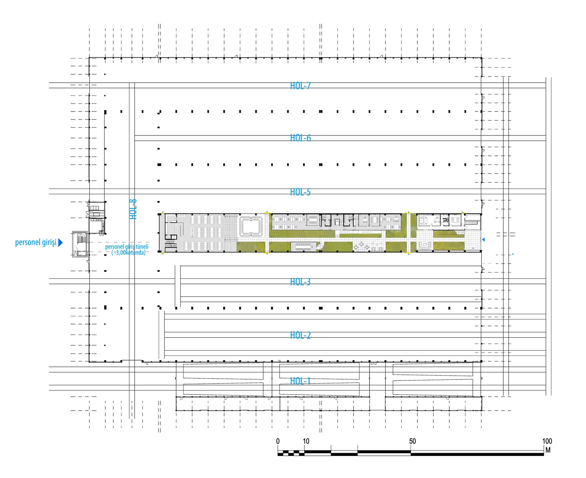
Ateşçelik Rüzgar Enerji Santrali Kule Üretim Tesisi
Proje Yeri: Bergama, İzmir
Proje Ofisi: D.A.Mimarlık
Proje Tipi: Diğer Endüstri Yapıları
Proje Tipi Grubu: Endüstriyel
Tasarım Ekibi: Durmuş Ali Kasap, Gülşah Akkan Kasap, Tuba Tuncalı, Gizem Güler, Nurullah Kılınç
İşveren: Say Reklamcılık
Yardımcı: Berna Derya Deniz, Helin Yıldırım, Dilan Erdoğan
Ana Yüklenici: Say Reklamcılık
Peyzaj Mimarlığı: Nesil Peyzaj
Statik Projesi: Tekno Mühendislik
Mekanik Projesi: Eke Mühendislik
Elektrik Projesi: Evre Elektrik
Proje Başlangıç Yılı: 2011
Proje Bitiş Yılı: 2018
İnşaat Başlangıç Yılı: 2011
İnşaat Bitiş Yılı: 2018
Arsa Alanı: 80.000 m2
Toplam İnşaat Alanı: 20,953 m2