8/9
Paylaş
Resmi Orjinal Boyutunda Göster
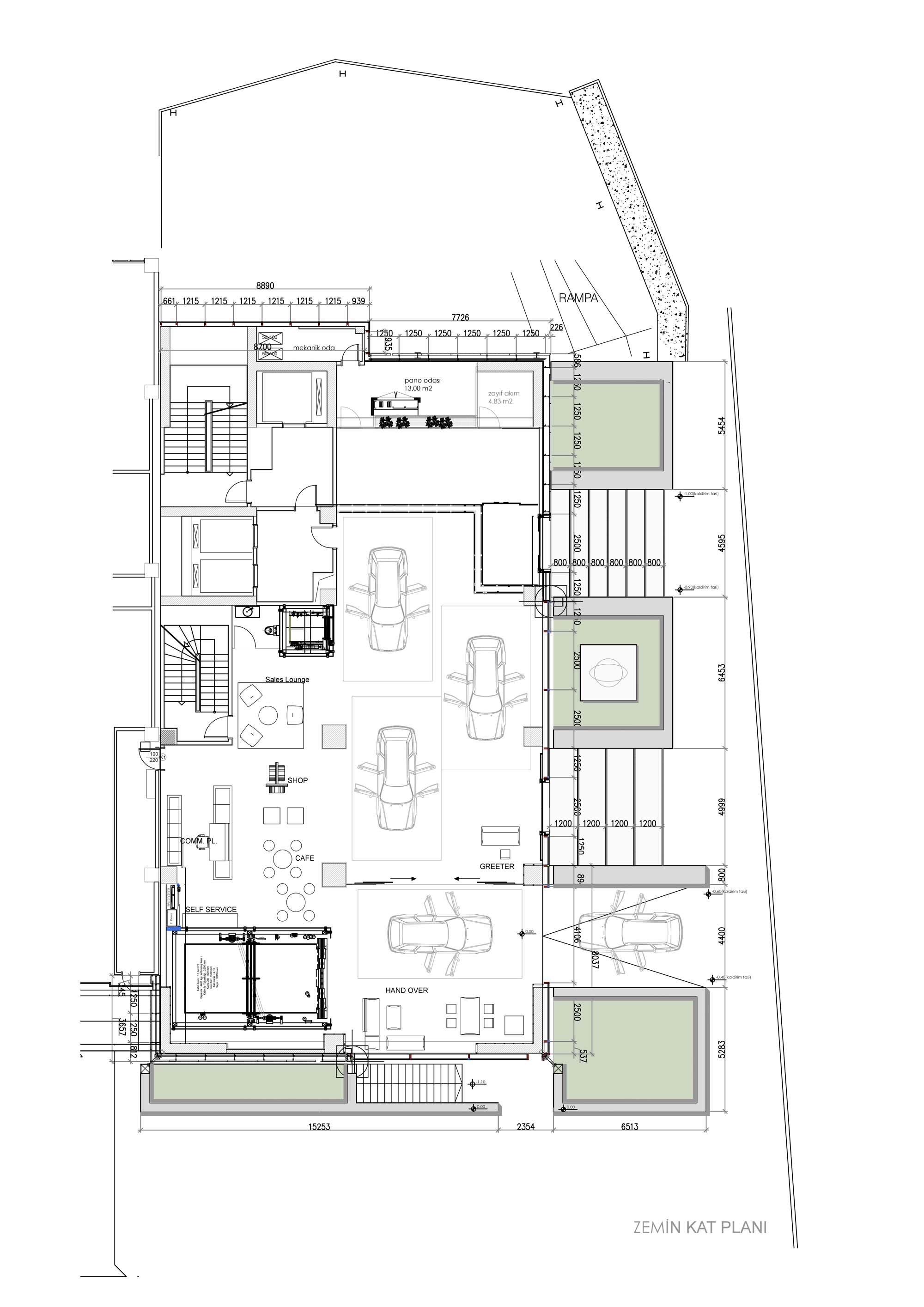
Erel Otomotiv Audi Binası
Proje Yeri: Maltepe, İstanbul
Proje Ofisi: Gungen Project
Proje Tipi: Ofis
Proje Tipi Grubu: Ticari
Tasarım Ekibi: Nazlı Güngen
İşveren: Erel Otomotiv
Ana Yüklenici: Metal Yapı
Alt Yüklenici: Metal Yapı
Konsept Tasarımı: Gungen Project
Uygulama Projesi: Metal Yapı
Cephe Tasarımı: Gungen Project
Aydınlatma Projesi: Gungen Project
Çelik Projesi: Metal Yapı
Fotoğraf: Cemal Emden
Mimari Mesleki Kontrollük: Gungen Project
Proje Başlangıç Yılı: 2015
Proje Bitiş Yılı: 2015
İnşaat Başlangıç Yılı: 2016
İnşaat Bitiş Yılı: 2017
Arsa Alanı: 1,000 m²
Toplam İnşaat Alanı: 8,000 m²