10/14
Paylaş
Resmi Orjinal Boyutunda Göster
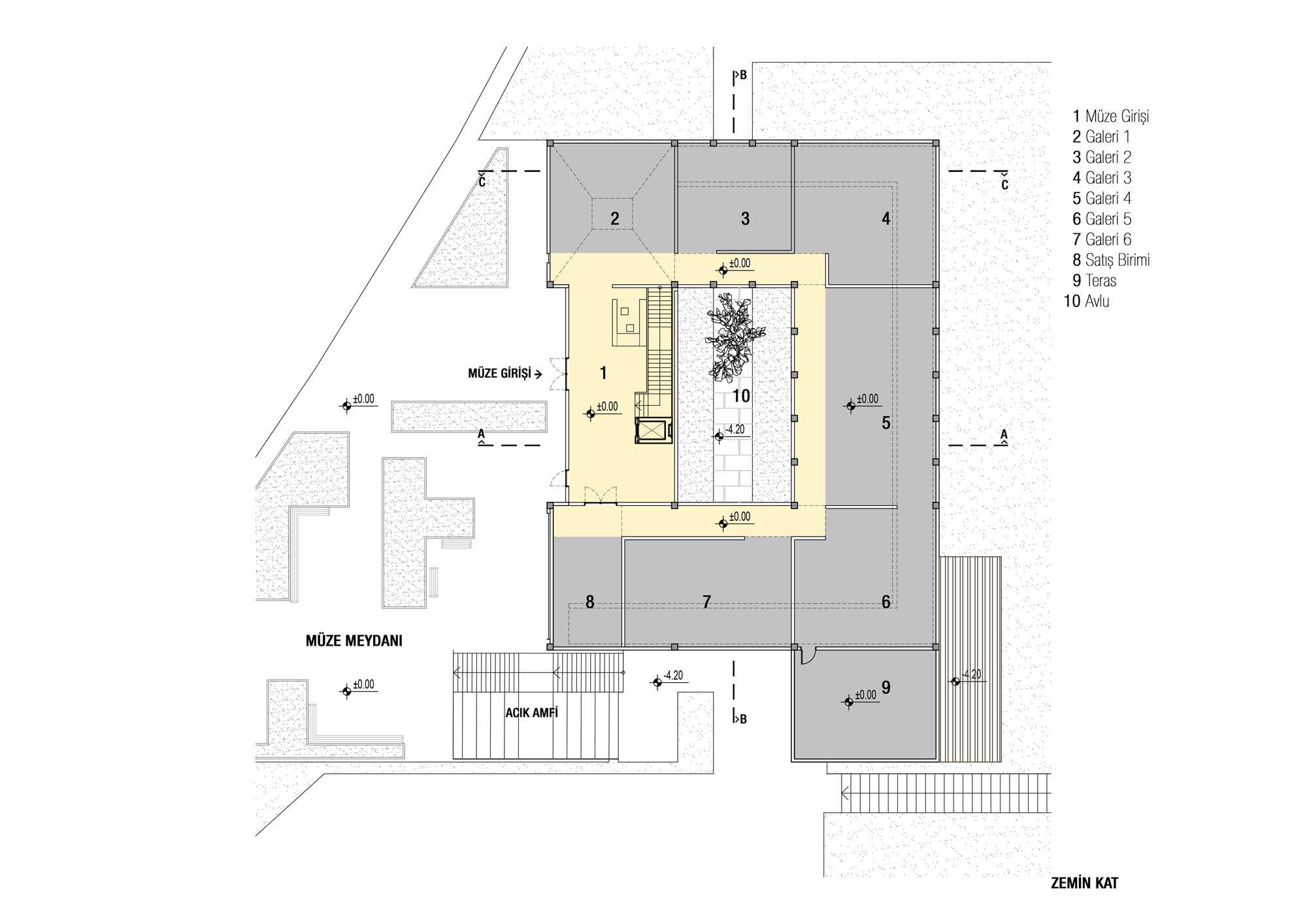
Oltu Müzesi
Project Location: Oltu, Erzurum
Project Office: Ergün Mimarlık
Project Type: Museum
Proje Tipi Grubu: Kültür
Tasarım Ekibi: Ender Ergün, Eser Ergün, Tuğçe Alkaya, Anıl Asal
Employer: Oltu Kaymakamlığı
Project Start Date: , 2018
Building Plot Area: 10.000 m²
Total Construction Area: 1.200 m2