10/13
Paylaş
Resmi Orjinal Boyutunda Göster
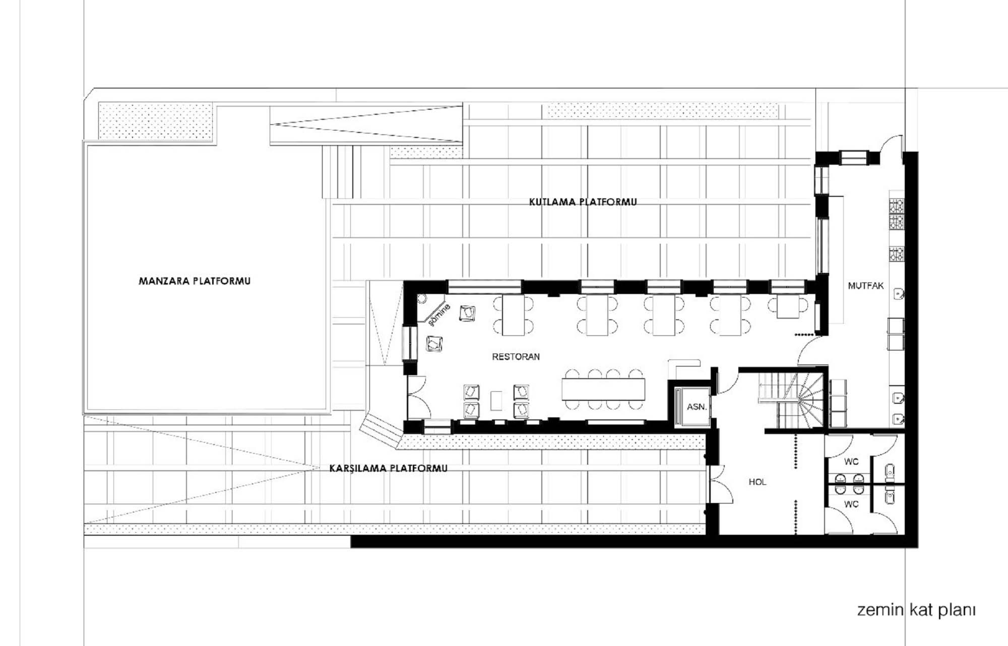
Satuti Konukevi
Proje Yeri: Bahçecik, Kocaeli (İzmit)
Proje Ofisi: ARSM Mimarlık
Proje Tipi: Yurt / Konukevi
Proje Tipi Grubu: Konaklama
Tasarım Ekibi: İbrahim Türkeri
Yardımcı: Ersoy Gönülaçar
İç Mekan Projesi: İbrahim Türkeri
Proje Yöneticisi: İbrahim Türkeri
Konsept Tasarımı: İbrahim Türkeri
Uygulama Projesi: Ersoy Gönülaçar
Aydınlatma Projesi: Coşar Özler
Fotoğraf: İbrahim Türkeri
Mimari Mesleki Kontrollük: İbrahim Türkeri
Şantiye Yöneticisi: Coşar Özler
Proje Başlangıç Yılı: 2012
Proje Bitiş Yılı: 2017
İnşaat Başlangıç Yılı: 2013
İnşaat Bitiş Yılı: 2017
Arsa Alanı: 550 m2
Toplam İnşaat Alanı: 280 m2