17/18
Paylaş
Resmi Orjinal Boyutunda Göster
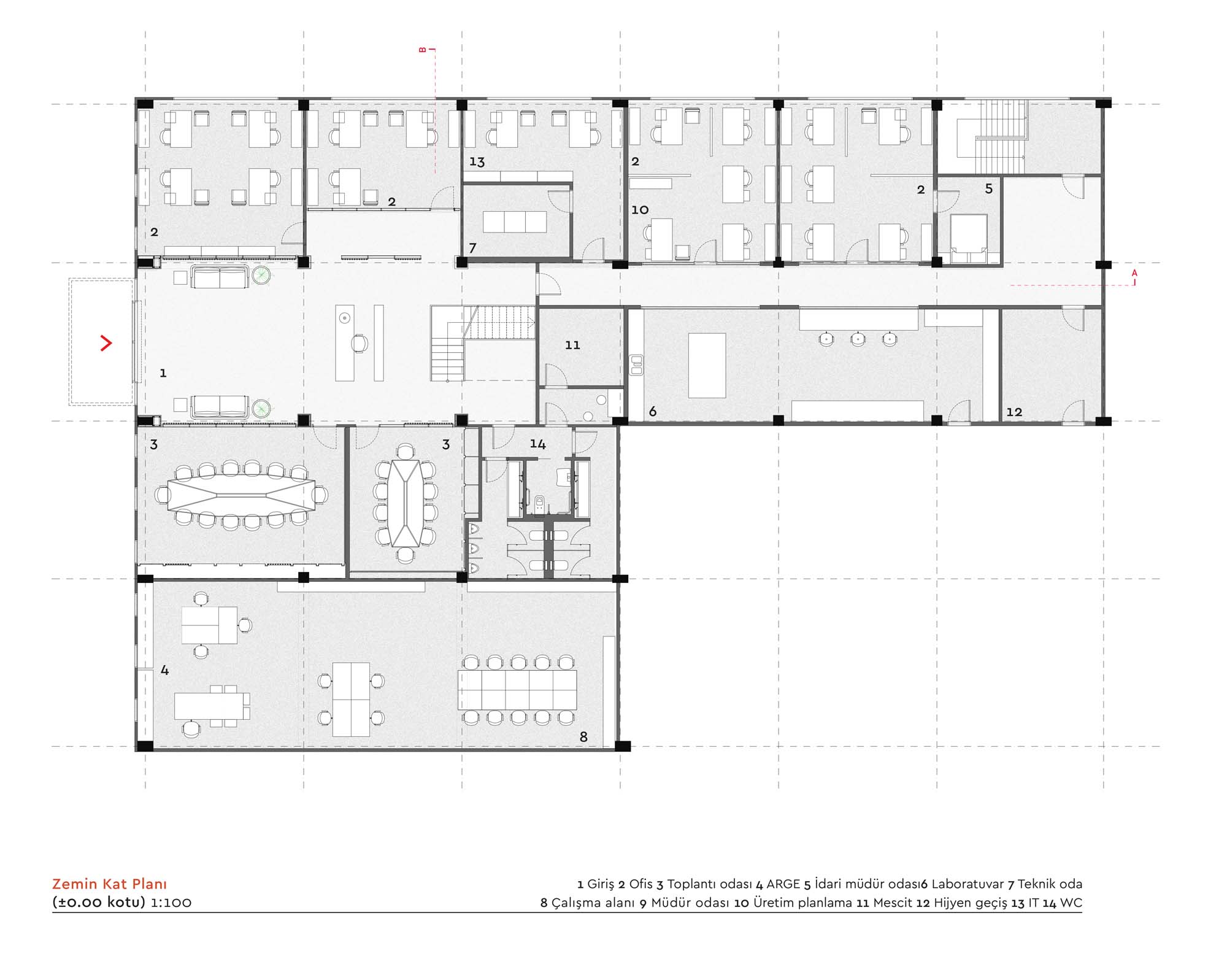
Merkas Group İdari Ofisleri
Project Location: İstanbul
Project Office: GIGoffice
Project Type: Offices
Proje Tipi Grubu: Commercial
Tasarım Ekibi: Tuba Şehitoğlu, Zeynep Akten, Hazal Günal
Employer: Merkas Group
Ana Yüklenici: Dervişoğlu İnşaat
Interior Architecture: Tuba Şehitoğlu, Zeynep Akten, Aytekin Erten
Projcet Manager: Tuba Şehitoğlu, Zeynep Akten
Structural Project: Dervişoğlu İnşaat
Mechanical Project: Dervişoğlu İnşaat
Electrical Project: Dervişoğlu İnşaat
Project Start Date: 2018
Project End Date: 2018
Construction Start Date: 2018
Construction End Date: 2018
Total Construction Area: 1,500 m2