19/32
Paylaş
Resmi Orjinal Boyutunda Göster
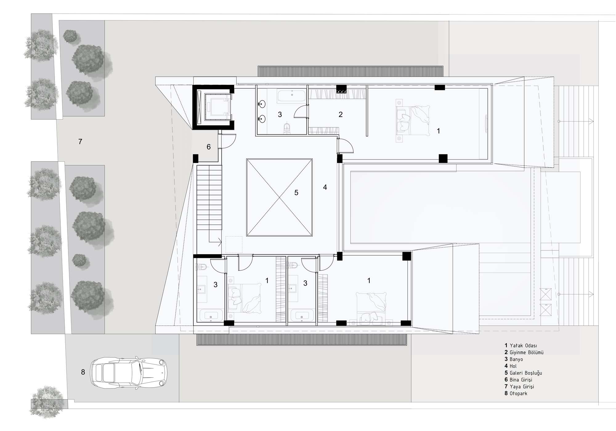
Blue Horizon Evi
Proje Yeri: Çeşme, İzmir
Proje Ofisi: NVA Noyan Vural Architects
Proje Tipi: Tek Ev / Villa
Proje Tipi Grubu: Konut
Tasarım Ekibi: Aybuke Gedik, Ayşe Yalçın İçyer, Tolga Bayazit, Büşra Esen, Leyla Çiftlik
İşveren: İnanç Fersah
Ana Yüklenici: Fersah Rüya Evler
Proje Yöneticisi: Noyan Vural
Uygulama Projesi: Aybüke Gedik
Statik Projesi: Salih Erdil Vural, Selim Göller, Tunç Ersan
Mekanik Projesi: Necdet Tunalı
Elektrik Projesi: Seçkin Sekman
Tesisat Projesi: Necdet Tunalı
Çelik Projesi: Tunç Ersan
Fotoğraf: Burak Gürbüz, Burak Yurdakul
Mimari Mesleki Kontrollük: Noyan Vural
Proje Başlangıç Yılı: 2016
Proje Bitiş Yılı: 2016
İnşaat Başlangıç Yılı: 2016
İnşaat Bitiş Yılı: 2018
Arsa Alanı: 1,600 m2
Toplam İnşaat Alanı: 675 m2