22/25
Paylaş
Resmi Orjinal Boyutunda Göster
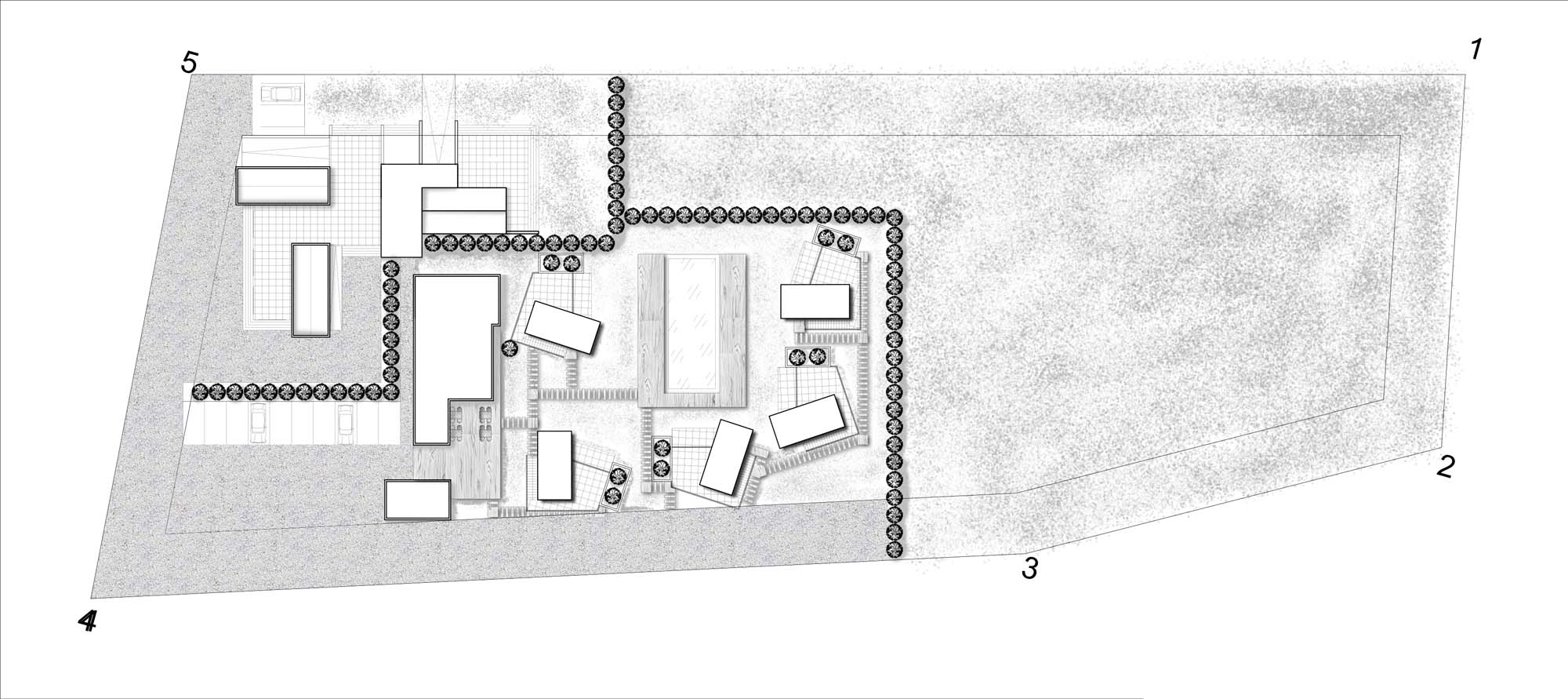
Perdix Şarap Evi
Proje Yeri: İzmir, Urla
Proje Ofisi: NVA Noyan Vural Architects
Proje Tipi: Ofis, Şarap Evi / Şaraphane
Proje Tipi Grubu: Ticari
Tasarım Ekibi: Noyan Vural
İşveren: İhsan Ebru Çapkınoğlu
Ana Yüklenici: İhsan Ebru Çapkınoğlu Eos Tarım Gıda Turizm
Statik Projesi: Salih Erdil Vural
Elektrik Projesi: Levent Altıntepe
Mimari Mesleki Kontrollük: Noyan Vural
Proje Başlangıç Yılı: 2017
İnşaat Başlangıç Yılı: 2017
Arsa Alanı: 5.605 m²