18/19
Paylaş
Resmi Orjinal Boyutunda Göster
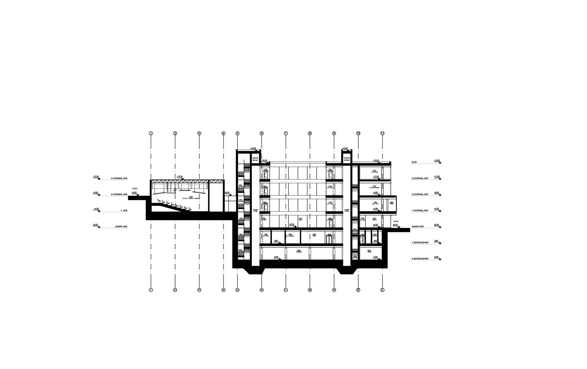
Beylikdüzü Emniyet Müdürlüğü
Proje Yeri: İstanbul
Proje Ofisi: PDG Mimarlar
Proje Tipi: Karakol
Proje Tipi Grubu: Kamu
Tasarım Ekibi: Murat Şahin, Cengiz Gültek
İşveren: Beylikdüzü Belediyesi
Yardımcı: Selda Süzgün, Anna Cojocar, Tuğba Özaşır, Doğacan Gül, Ediz Akyalçın, Burcu Köseoğlu, Ayhan Öçkaç, Özge Esin Kınık, Buket Altıntaş, Begüm Yılmaz, Aylin Avan, Melis Duman
Proje Yöneticisi: Ayhan Öçkaç
Proje Başlangıç Yılı: 2017
Toplam İnşaat Alanı: 11.733 m²