10/14
Paylaş
Resmi Orjinal Boyutunda Göster
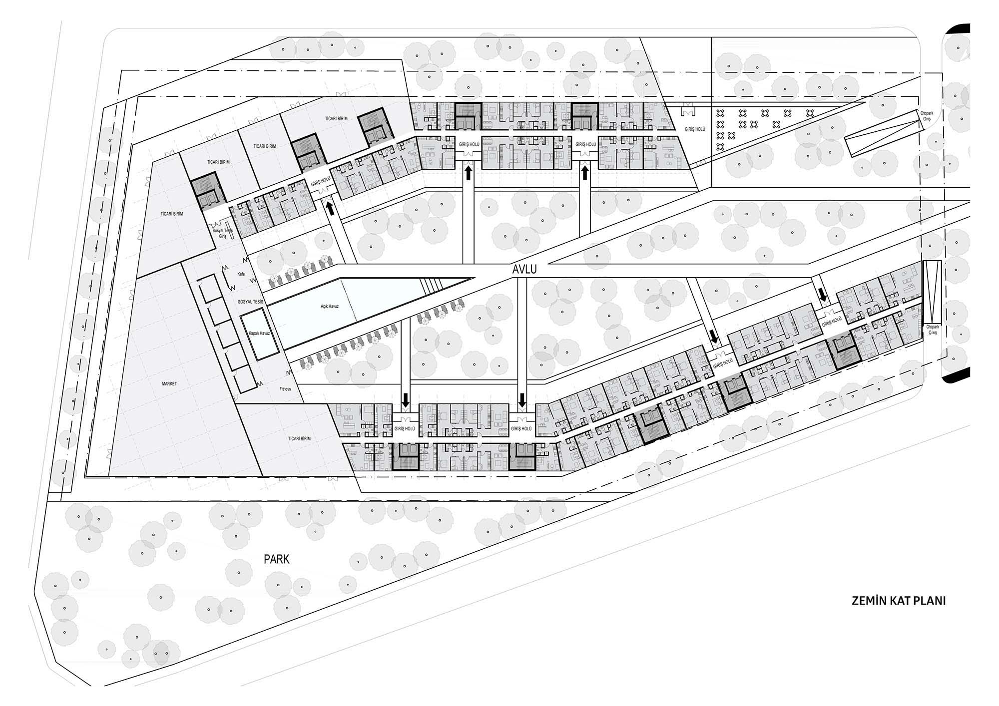
Folkart Time 2
Proje Yeri: Bornova, İzmir
Proje Ofisi: FREA, SCRA Mimarlık
Proje Tipi: Konut Sitesi / Grubu
Proje Tipi Grubu: Konut
Tasarım Ekibi: Fatih Yavuz, Seden Cinasal, Ramazan Avcı, Ömer Emre Şavural
İşveren: Folkart Yapı
Yardımcı: İbrahim Yavuz, Hasan Hüseyin Özdurmuş
Konsept Tasarımı: FREA, SCRA Mimarlık
Cephe Tasarımı: FREA, SCRA Mimarlık
Proje Başlangıç Yılı: 2016
Proje Bitiş Yılı: 2016
Toplam İnşaat Alanı: 112.000 m²