11/18
Paylaş
Resmi Orjinal Boyutunda Göster
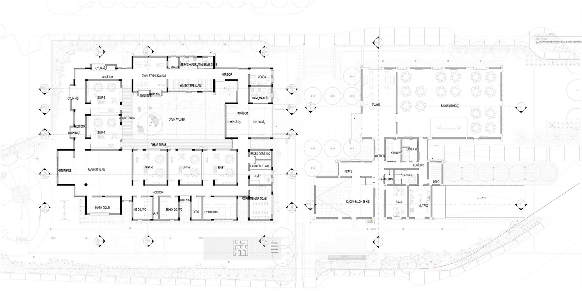
Refahiye Anaokulu ve Kültür Merkezi
Proje Yeri: Refahiye, Erzincan
Proje Ofisi: FREA
Proje Tipi: Anaokulu / Kreş, Kültür Merkezi
Proje Tipi Grubu: Eğitim, Kültür
Tasarım Ekibi: Fatih Yavuz, Ömer Emre Şavural, Hasan Hüseyin Özdurmuş
İşveren: Türk Telekom
Yardımcı: Kubilay Şahinler, Meryem Merve Topdaş, İbrahim Yavuz, Sema Çağlayan, Efe Ovacık, Gökçe Naz Soysal, Kürşat Elitok, Nasratullah Amiri, Gözde Delice, Furkan Balcı
Cephe Tasarımı: FREA, Baymim Danışmanlık
Grafik Tasarım: Ayfa Mühendislik
Mekanik Projesi: GMD Proje
Elektrik Projesi: Özay Mühendislik
Tesisat Projesi: GMD Proje
Akustik Danışmanı: MegoTasarım ve Danışmanlık
Proje Başlangıç Yılı: 2018
Proje Bitiş Yılı: 2018
İnşaat Başlangıç Yılı: 2019
Arsa Alanı: 5.600 m²
Toplam İnşaat Alanı: 2.000 m2