18/22
Paylaş
Resmi Orjinal Boyutunda Göster
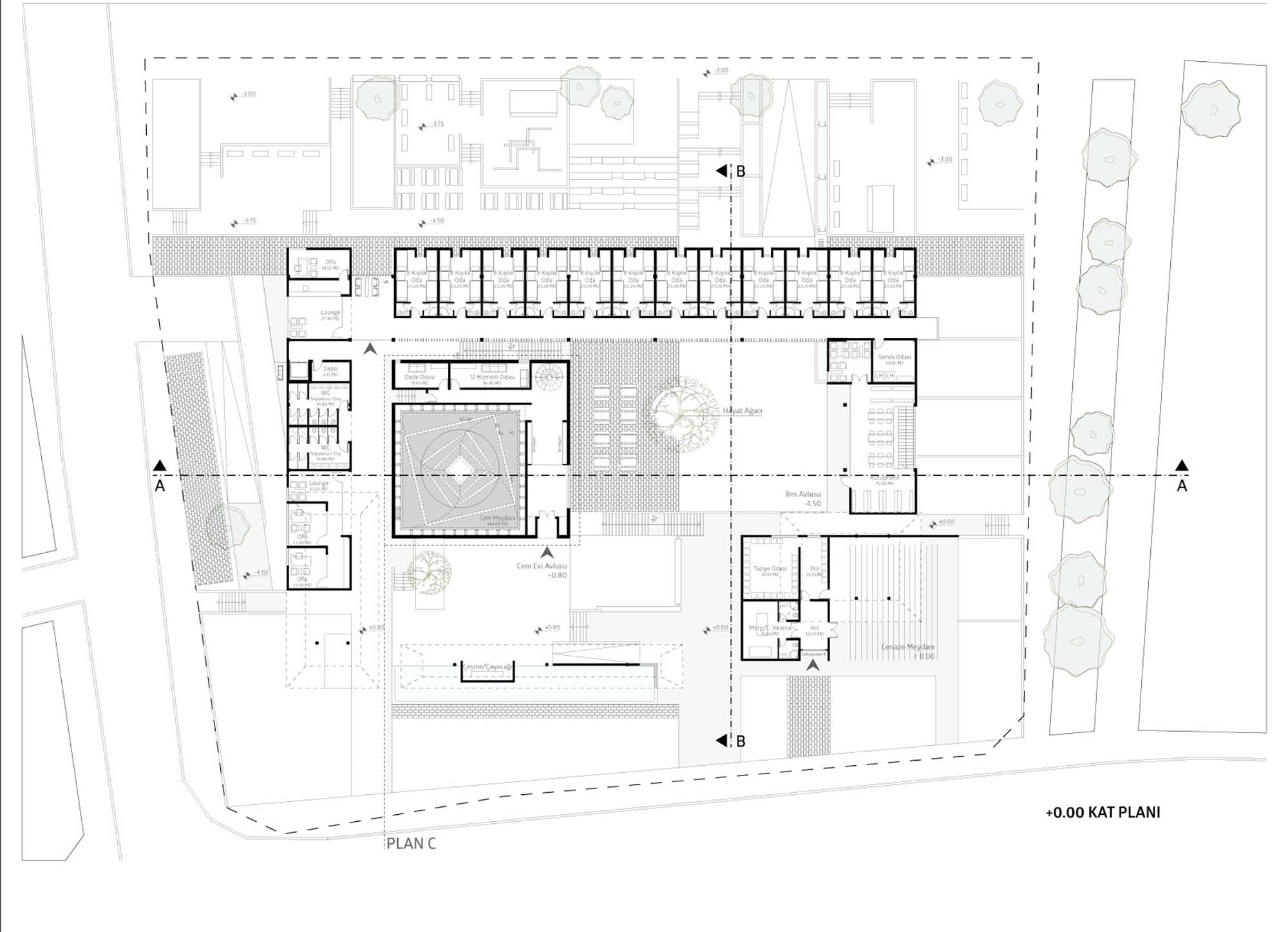
Serçeşme İnanç ve Kültür Merkezi
Proje Yeri: Nevşehir
Proje Ofisi: FREA
Proje Tipi: Cem Evi
Proje Tipi Grubu: Dini
Tasarım Ekibi: Fatih Yavuz, Ömer Emre Şavural
Danışman: Mehmet Zafer Kınacı, Kemal Ovacık, Bahri Türkmen, Nursel Güvendir
Yardımcı: İbrahim Yavuz, Ege Çakır, Merve Şen, Taner Keskin
Grafik Tasarım: İskender Erdem
Proje Başlangıç Yılı: 2017
Proje Bitiş Yılı: 2017
Toplam İnşaat Alanı: 3.200 m²