21/28
Paylaş
Resmi Orjinal Boyutunda Göster
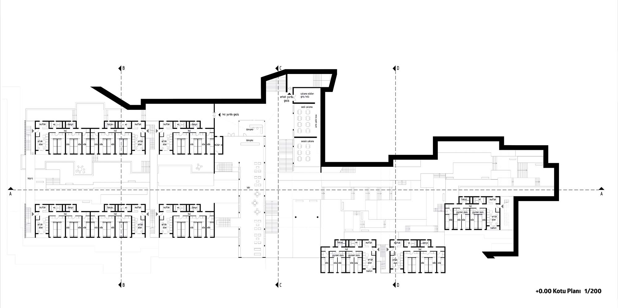
ODTÜ Kuzey Kıbrıs Kampüsü Öğrenci Yurdu
Project Location: Kuzey Kıbrıs Türk Cumhuriyeti (KKTC)
Project Office: FREA
Project Type: Dormitory / Guesthouse
Proje Tipi Grubu: Eğitim
Tasarım Ekibi: Fatih Yavuz, Ömer Emre Şavural, Kubilay Şahinler, Hasan Hüseyin Özdurmuş
Employer: ODTÜ EBİ
Consultant: Mehmet Zafer Kınacı, Kemal Ovacık, Bahri Türkmen
Yardımcı: İbrahim Yavuz, Melih Tokaç, Sema Çağlayan, Meryem Topdaş, Ayşe Dağoğlu
Project Start Date: 2017
Project End Date: 2017
Total Construction Area: 3.200 m²