13/16
Paylaş
Resmi Orjinal Boyutunda Göster
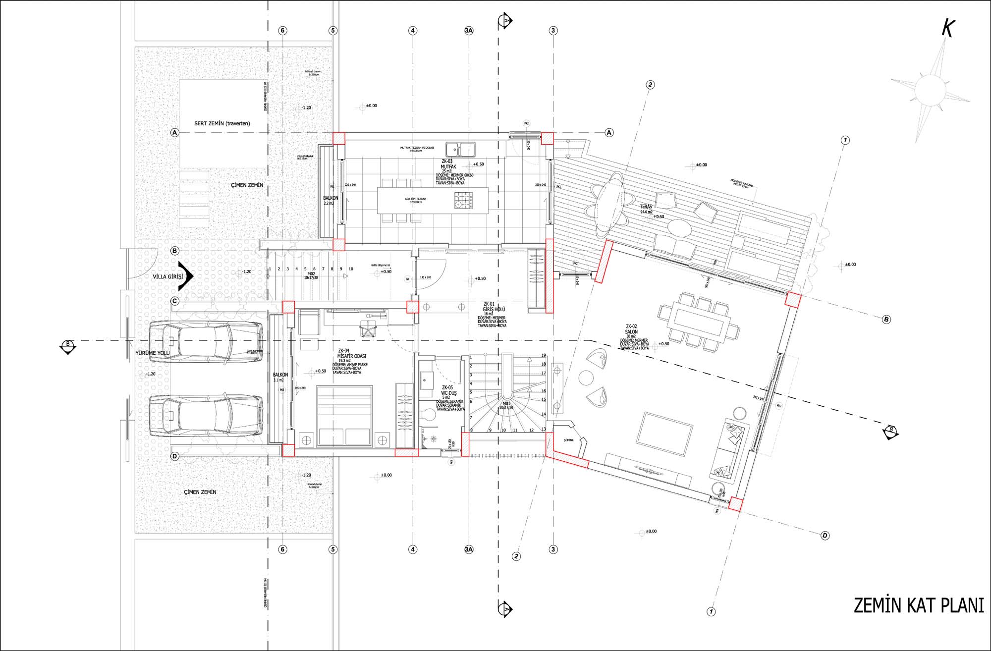
Natura Homes Döşemealtı
Project Location: Antalya, Döşemealtı
Project Office: FTB Mimarlık
Project Type: Housing Complex
Proje Tipi Grubu: Konut
Tasarım Ekibi: Fatih Babaoğlu
Employer: Yörüksan, FMC Yapı
Yardımcı: Kadir Babaoğlu, Volkan Kaya, Haniye Razavi, Cengiz Kaya
Ana Yüklenici: FMC Yapı
Structural Project: Emrah Hesapçıoğlu
Mechanical Project: Ersin Koç
Electrical Project: Şaban Tat
Photography: Cengiz Kaya
Project Start Date: 2015
Project End Date: 2015
Construction Start Date: 2016
Construction End Date: 2017
Building Plot Area: 5,017 m2
Total Construction Area: 4,364 m2