38/45
Paylaş
Resmi Orjinal Boyutunda Göster
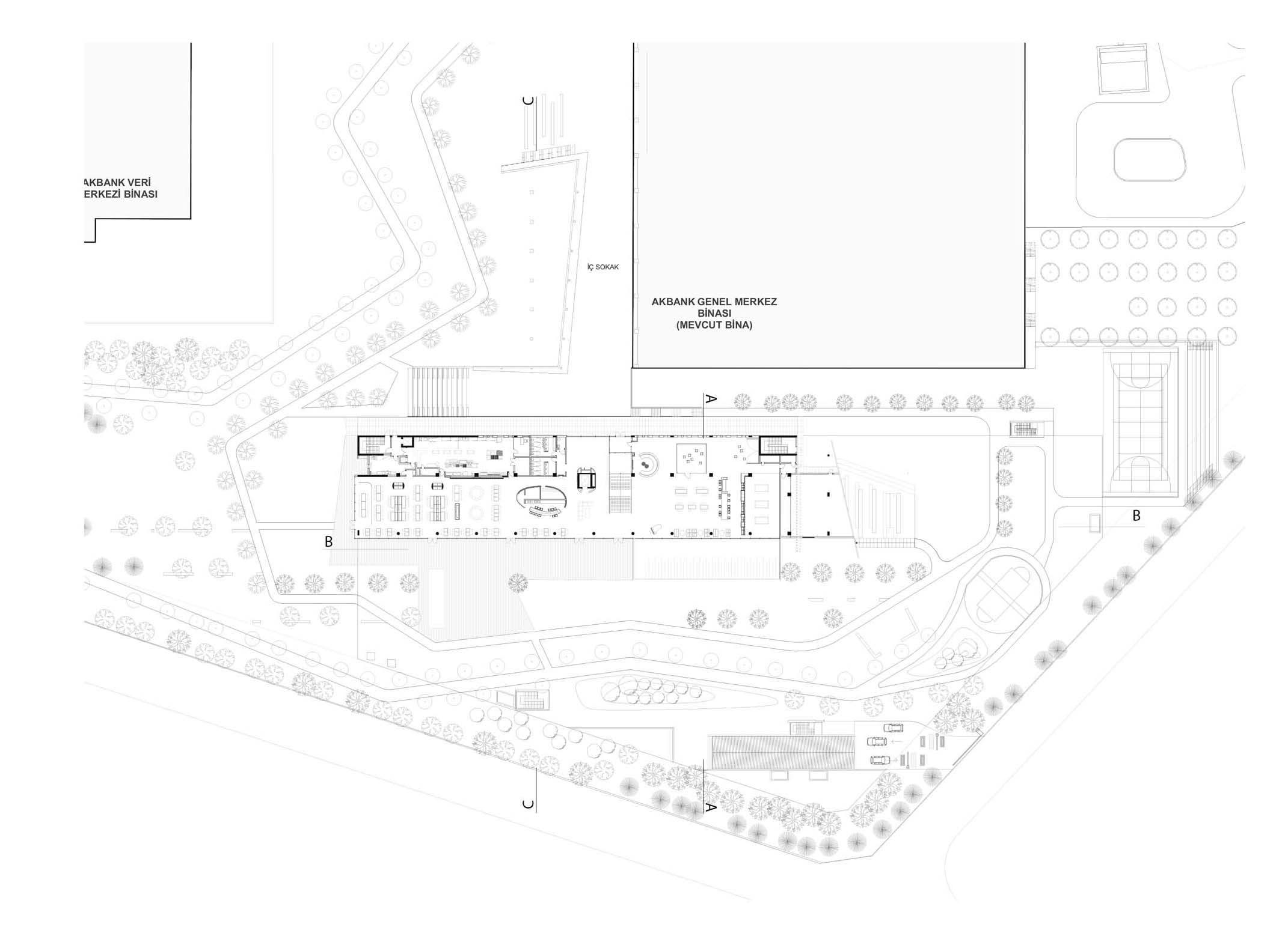
Akbank Akademi Yaşam Merkezi
Proje Yeri: Çayırova, Kocaeli (İzmit)
Proje Ofisi: TeCe Mimarlık
Proje Tipi: Sosyal Tesis
Proje Tipi Grubu: Ticari
Tasarım Ekibi: Cem İlhan, Tülin Hadi, Sezin Beldağ, Hande Sermet Topönder, Özge Evirgen, Saruhan Oflaz, Su Kapkın, İmre Hadi
İşveren: Akbank
Ana Yüklenici: Tek Yapı
Peyzaj Mimarlığı: Ceypeyzaj
Aydınlatma Projesi: LAB1 Aydınlatma Tasarımı
Grafik Tasarım: İyi Ofis
Statik Projesi: YBT Yapısal Tasarım Hizmetleri (YBTAS)
Mekanik Projesi: ENAR Mühendislik
Elektrik Projesi: Enkom Mühendislik
Altyapı Projesi: Ekin Proje Yönetim Harita
Yangın Güvenlik Danışmanı: Karina Danışmanlık
Fotoğraf: Emrah Altınok, Faruk Uyan
Proje Başlangıç Yılı: 2017
Proje Bitiş Yılı: 2018
İnşaat Başlangıç Yılı: 2018
İnşaat Bitiş Yılı: 2019
Arsa Alanı: 75.486 m2
Toplam İnşaat Alanı: 22.050 m2