6/18
Paylaş
Resmi Orjinal Boyutunda Göster
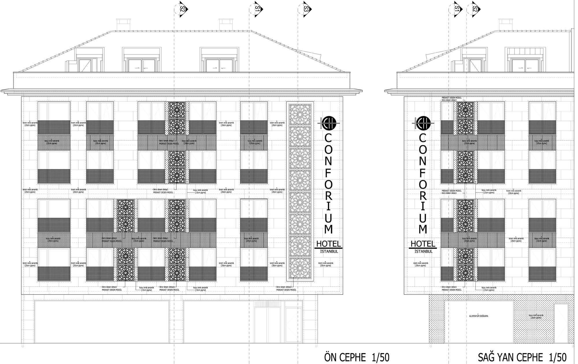
The Conforium Hotel Cephe ve İç Mekan Tasarımı
Proje Yeri: İstanbul, Zeytinburnu
Proje Ofisi: FTB Mimarlık
Proje Tipi: Otel / Motel
Proje Tipi Grubu: Konaklama
Tasarım Ekibi: Fatih Babaoğlu
İşveren: The Conforium Hotel
Yardımcı: Kadir Babaoğlu, Haniye Razavi, Volkan Kaya
Ana Yüklenici: EKC Yapı
Fotoğraf: Fatih Babaoğlu
Proje Başlangıç Yılı: 2014
Proje Bitiş Yılı: 2014
İnşaat Başlangıç Yılı: 2014
İnşaat Bitiş Yılı: 2015
Arsa Alanı: 230 m2
Toplam İnşaat Alanı: 1,675 m2