15/25
Paylaş
Resmi Orjinal Boyutunda Göster
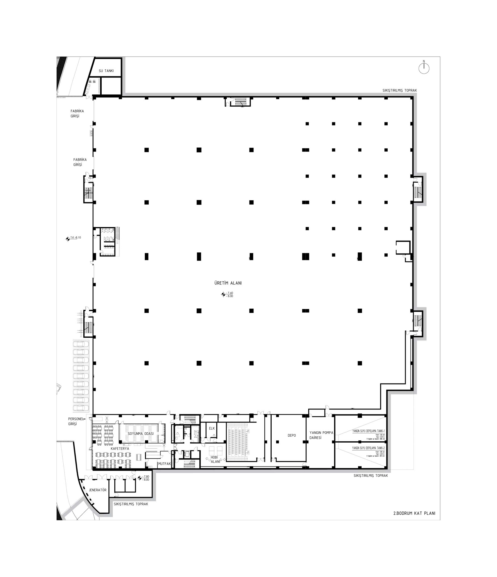
Systemair ve HSK Fabrika Projesi
Proje Yeri: Dilovası, Kocaeli (İzmit)
Proje Ofisi: Serhan Ceyhan Mimarlık
Proje Tipi: Fabrika , Ofis
Proje Tipi Grubu: Endüstriyel
Tasarım Ekibi: Serhan Ceyhan, Hande Öğün, Dilek Akdeniz, Sezen Serper, Burak Can
İşveren: Systemair-HSK
Ana Yüklenici: Haldız İnşaat
Proje Yöneticisi: Hill International
Statik Projesi: Pronet Mühendislik, Ara Pekmezoğlu
Mekanik Projesi: Dinamik Proje Mühendislik, Zühtü Ferah
Elektrik Projesi: Encom Mühendislik, Belgin Pekcan
Yangın Tahliye Projesi: Kazım Beceren
Proje Başlangıç Yılı: 2015
Proje Bitiş Yılı: 2016
İnşaat Başlangıç Yılı: 2016
İnşaat Bitiş Yılı: 2019
Arsa Alanı: 24.911 m2
Toplam İnşaat Alanı: 27.367 m2