40/40
Paylaş
Resmi Orjinal Boyutunda Göster
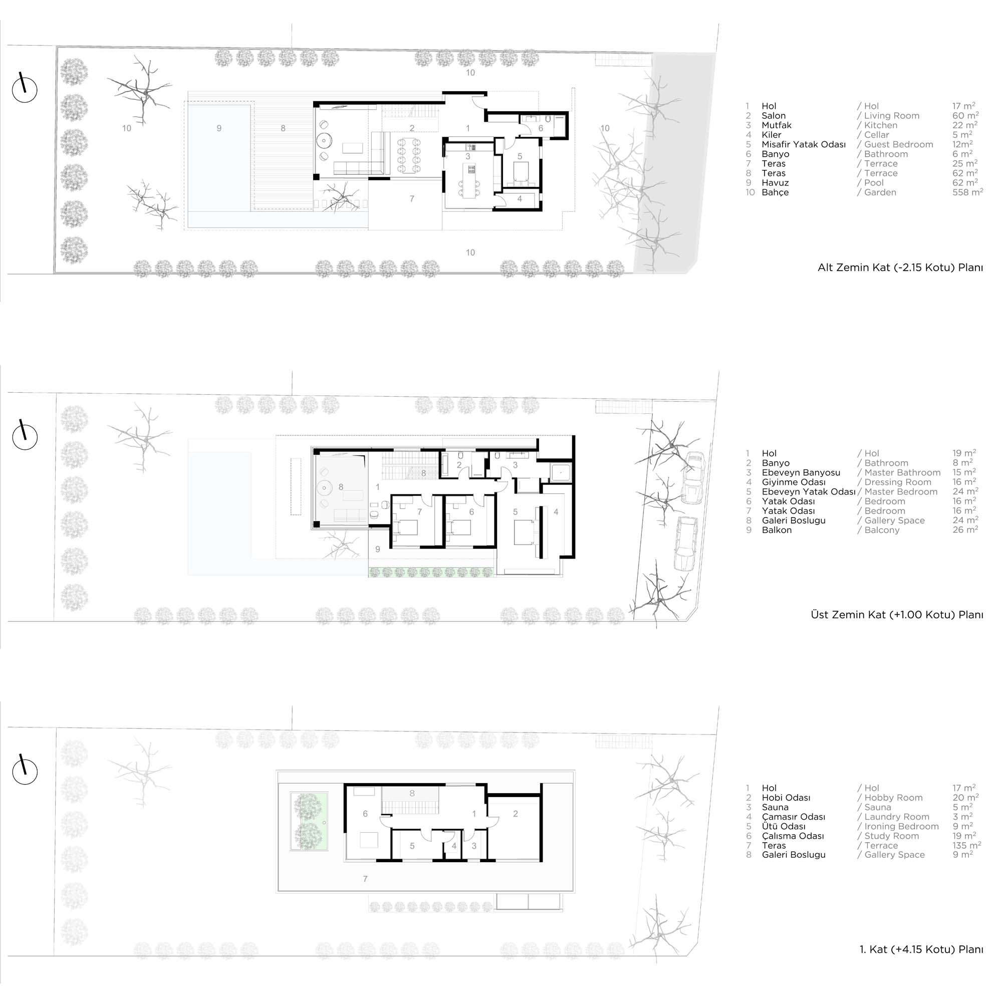
Koray Arslan Evi
Proje Yeri: İzmir, Güzelbahçe
Proje Ofisi: Mert Uslu Mimarlık
Proje Tipi: Tek Ev / Villa
Proje Tipi Grubu: Konut
Tasarım Ekibi: Mert Uslu, Nilay Özcan Uslu
İşveren: Koray Arslan
Yardımcı: İmge Yurtseven Koç, Melek Güneysu, Farida Rashidova
Ana Yüklenici: Koray Arslan
Proje Yöneticisi: Mert Uslu
Statik Projesi: DA Mühendislik
Mekanik Projesi: Baloğlu Mühendislik
Elektrik Projesi: Bolelli Mühendislik
Fotoğraf: Zeren + Mehmet Yasa Photography
Proje Başlangıç Yılı: 2016
Proje Bitiş Yılı: 2017
İnşaat Başlangıç Yılı: 2017
İnşaat Bitiş Yılı: 2019
Arsa Alanı: 934 m²
Toplam İnşaat Alanı: 410 m²