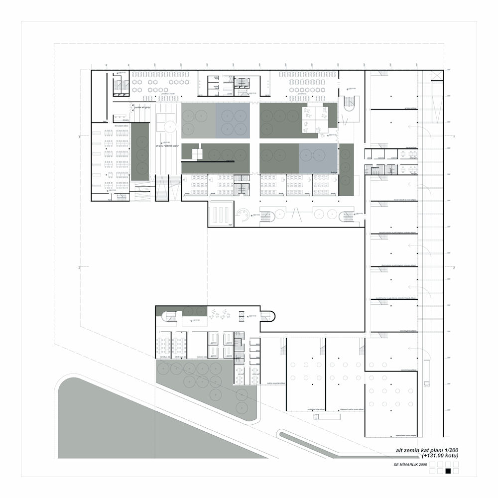
Alt Zemin Kat Planı
3/8
Paylaş
Resmi Orjinal Boyutunda Göster
UİB Otomotiv Anadolu Teknik Lisesi Mimari Avan Proje Yarışması, 3. Ödül
Proje Yeri: Görükle, Bursa
Proje Ofisi: SE Mimarlık
Proje Tipi: Lise / Ortaöğretim
Proje Tipi Grubu: 3. Ödül
Tasarım Ekibi: Selim Velioğlu
İşveren: Uludağ Otomotiv Endüstrisi İhracatçıları Birliği (UİB)