39/40
Paylaş
Resmi Orjinal Boyutunda Göster
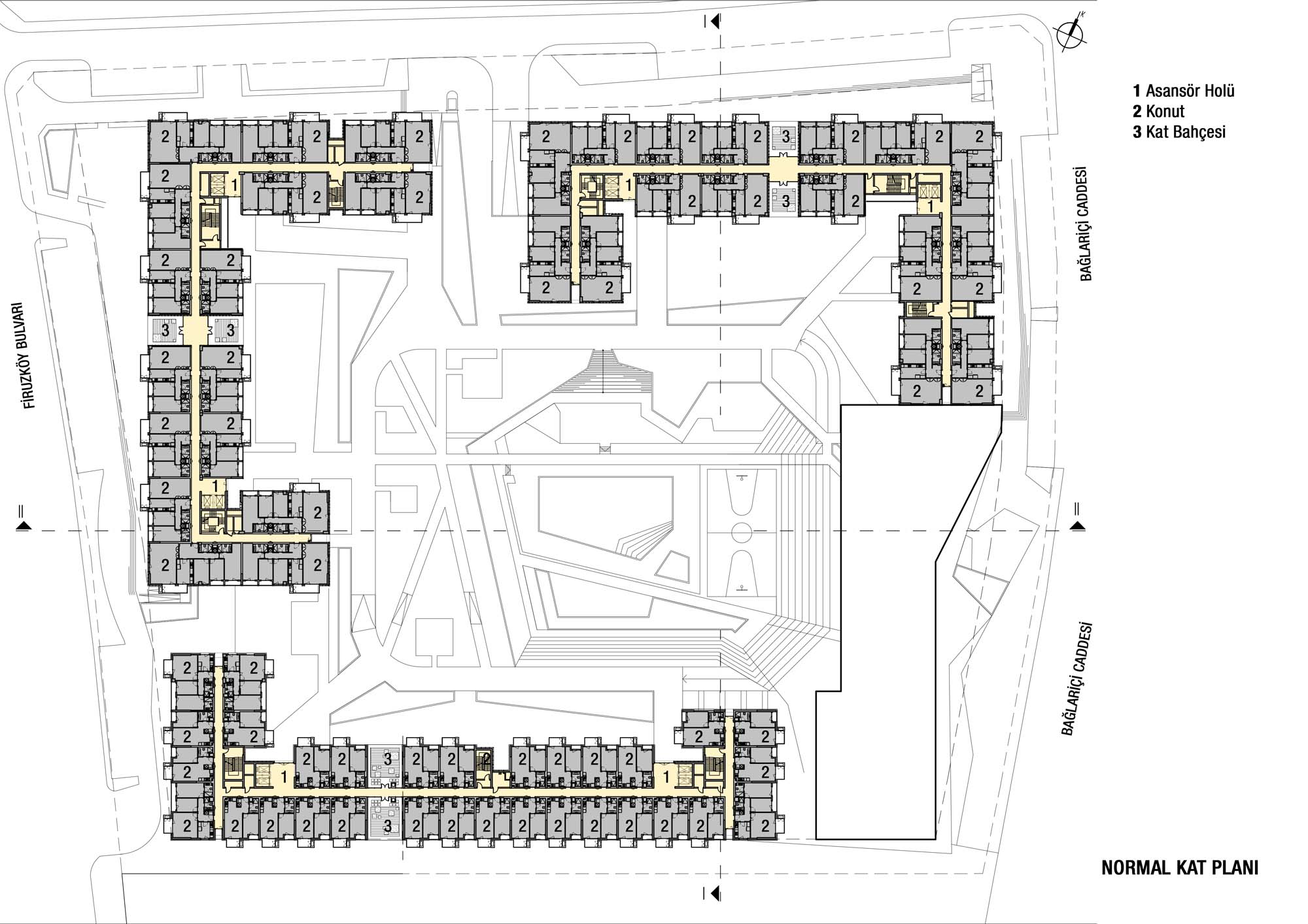
3s Firuze Konakları
Proje Yeri: Avcılar, İstanbul
Proje Ofisi: Ergün Mimarlık
Proje Tipi: Konut Sitesi / Grubu
Proje Tipi Grubu: Konut
Tasarım Ekibi: Ender Ergün, Eser Ergün, Can Tamirci, Burcu Durmaz, İpek Hayrater, Servet Unver, Esma Değirmenci
İşveren: 3S Kale Gayrimenkul
Ana Yüklenici: 3S Kale Gayrimenkul
Peyzaj Mimarlığı: Arzu Nuhoğlu Peyzaj Tasarım
İç Mekan Projesi: Esat Özkan, Zeynep Ergün, Anıl Asal, Gizem Arslaner, Meltem Uysal
Aydınlatma Projesi: Lipom Aydınlatma
Statik Projesi: Fonksiyon Mühendislik
Mekanik Projesi: Dinamik Proje Mühendislik
Elektrik Projesi: Enkom Mühendislik
Fotoğraf: Emre Dörter
Mimari Mesleki Kontrollük: Ergün Mimarlık
Şantiye Yöneticisi: Cengiz Türe
Proje Başlangıç Yılı: 2015
Proje Bitiş Yılı: 2016
İnşaat Başlangıç Yılı: 2016
İnşaat Bitiş Yılı: 2018
Arsa Alanı: 28,000 m²
Toplam İnşaat Alanı: 112,000 m2