30/32
Paylaş
Resmi Orjinal Boyutunda Göster
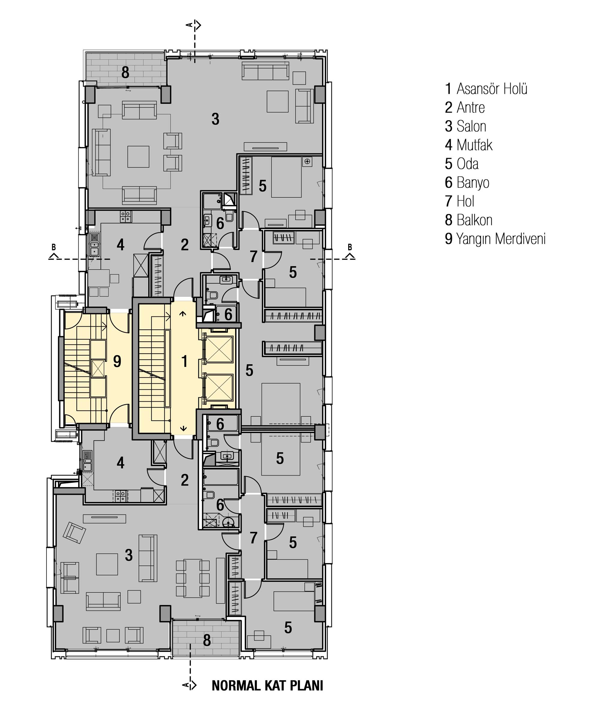
Alageyik Apartmanı
Proje Yeri: İstanbul, Kadıköy
Proje Ofisi: Ergün Mimarlık
Proje Tipi: Apartman
Proje Tipi Grubu: Konut
Tasarım Ekibi: Ender Ergün, Eser Ergün, Servet Ünver, Alper Kılıç
İşveren: Birgen İnşaat
İç Mekan Projesi: Zeynep Ergün
Fotoğraf: ALTKAT Architectural Photography
Mimari Mesleki Kontrollük: Ergün Mimarlık
İnşaat Bitiş Yılı: 2016
Toplam İnşaat Alanı: 3.000 m2