19/22
Paylaş
Resmi Orjinal Boyutunda Göster
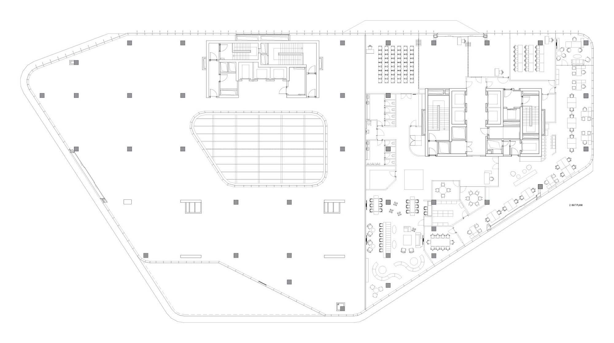
Alternatif Bank Genel Müdürlük Binası İç Mekan Tasarımı
Proje Yeri: İstanbul, Kağıthane
Proje Ofisi: Erginoğlu & Çalışlar Mimarlık
Proje Tipi: Ofis
Proje Tipi Grubu: Ticari
Tasarım Ekibi: Kerem Erginoğlu, Hasan Çalışlar, Romain Cadoux, Natali Koçyan Gazeroğlu, Sezen Bilge, Yasemin Hacıkura, Duygu Uzunalı, Aslı Germirli, Ezgi Mete
İşveren: Alternatif Bank
Ana Yüklenici: Oğuz Bayazıt Mimarlık
Proje Yöneticisi: İŞTE Proje Yönetimi
Mekanik Projesi: MEP Mühendislik
Proje Başlangıç Yılı: 2018
Proje Bitiş Yılı: 2018
İnşaat Başlangıç Yılı: 2018
İnşaat Bitiş Yılı: 2019
Toplam İnşaat Alanı: 13,000 m²