4/16
Paylaş
Resmi Orjinal Boyutunda Göster
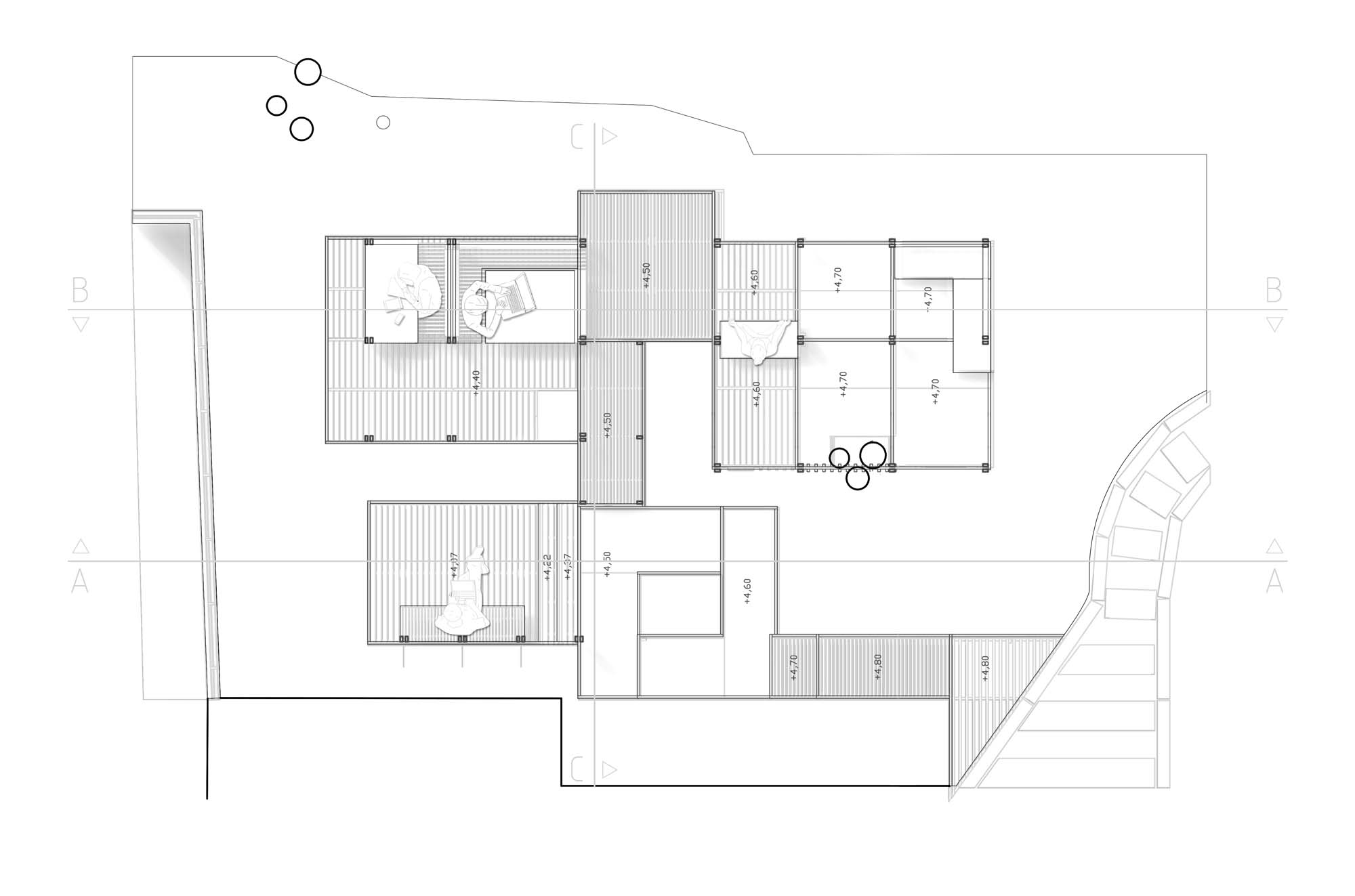
Asma Kat Pergola ve Açık Çalışma Alanları
Proje Yeri: İstanbul, Sarıyer
Proje Ofisi: MEF Üniversitesi, Tasarla ve Yap! Stüdyosu
Tasarım Ekibi: Bahar Adlı, Burcu Albayrak, Deniz Sinem Oğus, Derya Han, Elif Şevval Yılmaz, Fatma Kevser Aksoy, Gizem Eryılmaz, Hilal Güney, Irmak Yelok, Kaan Berk Kaya, Mehmet Berkay Erbaşı, Mustafa Güney, Neslihan Bıyıklı, Selahattin Biberoğlu, Selen Ağaoğlu, Zeynep Çifcibaşı
Proje Yöneticisi: Ubeydullah Yaşar, Yusuf Aras Kalkan, Osman Faruk Akkum, Tunahan Çelen
Proje Başlangıç Yılı: 2019
Proje Bitiş Yılı: 2019
İnşaat Başlangıç Yılı: 2019
İnşaat Bitiş Yılı: 2019
Arsa Alanı: 120 m2
Toplam İnşaat Alanı: 60 m²