50/56
Paylaş
Resmi Orjinal Boyutunda Göster
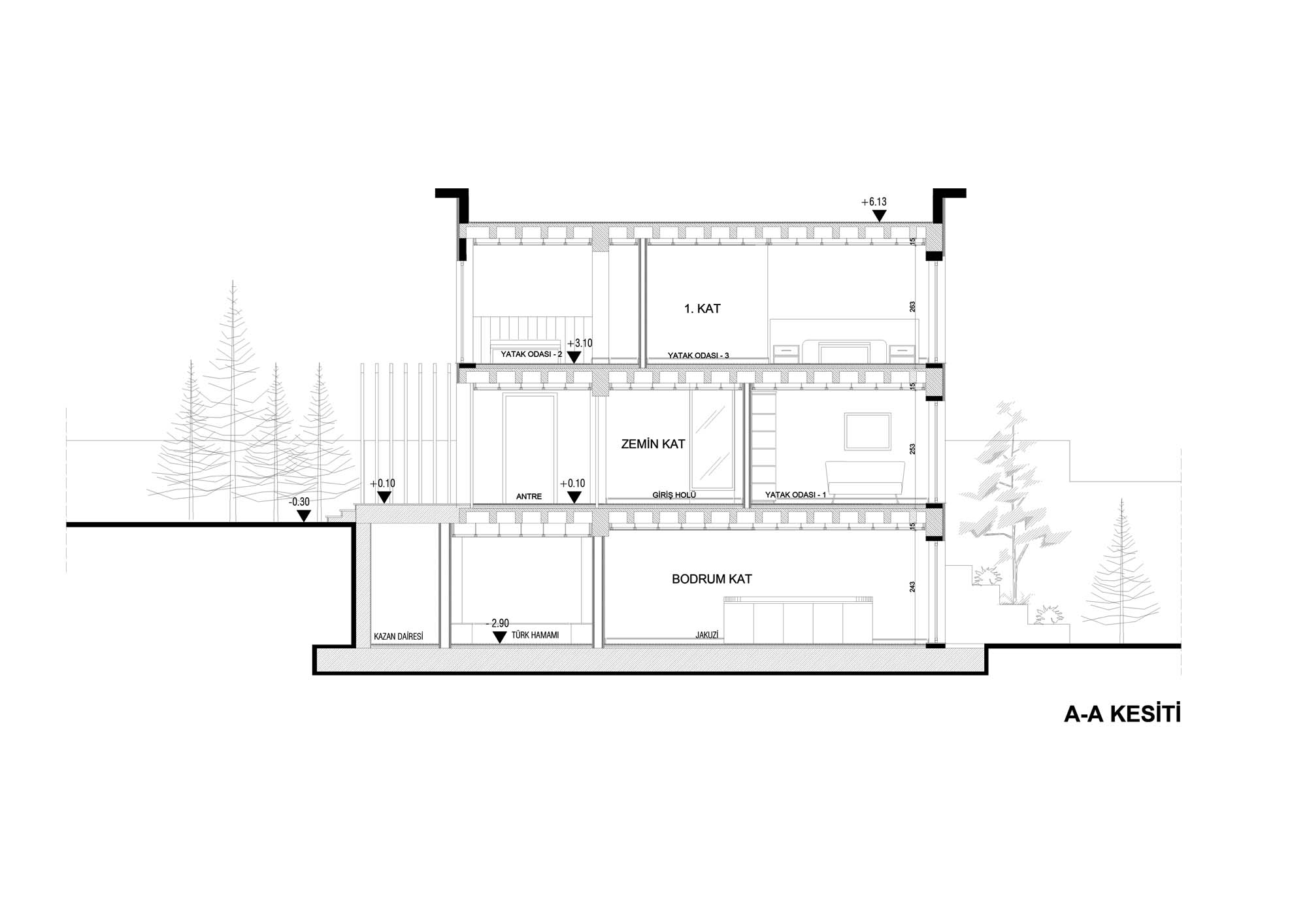
B Evi
Project Location: Konya
Project Office: Elips Tasarım Mimarlık
Project Type: Single House
Proje Tipi Grubu: Konut
Tasarım Ekibi: Feza Koca, Vildan Tunalı, Erhan Şahinkoç
Yardımcı: Miray Burmalı, Sezen Mert
Projcet Manager: Feza Koca
Photography: Ali Bekman Photography
Project Start Date: 2016
Project End Date: 2016
Construction Start Date: 2017
Construction End Date: 2019
Building Plot Area: 2.045 m2
Total Construction Area: 666 m2