12/12
Paylaş
Resmi Orjinal Boyutunda Göster
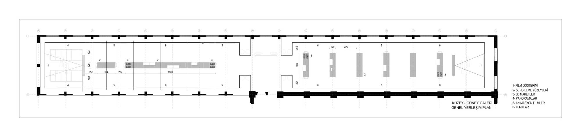
Bir Şehir Kurmak 1923 1933 Sergisi Tasarımı
Project Location: Ankara
Project Office: FREA
Project Type: Exhibition Design
Proje Tipi Grubu: Kültür
Tasarım Ekibi: Fatih Yavuz, Ömer Emre Şavural
Employer: Vehbi Koç Vakfı
Ana Yüklenici: Tamkoçlar Çelik, Turan Mobilya, Ertuğrul Kardeşler Mefruşat, Mert Copy
Photography: Müge Cengizkan
Project Start Date: 2019
Project End Date: 2019
Construction Start Date: 2019
Construction End Date: 2019
Total Construction Area: 1.070 m2