23/28
Paylaş
Resmi Orjinal Boyutunda Göster
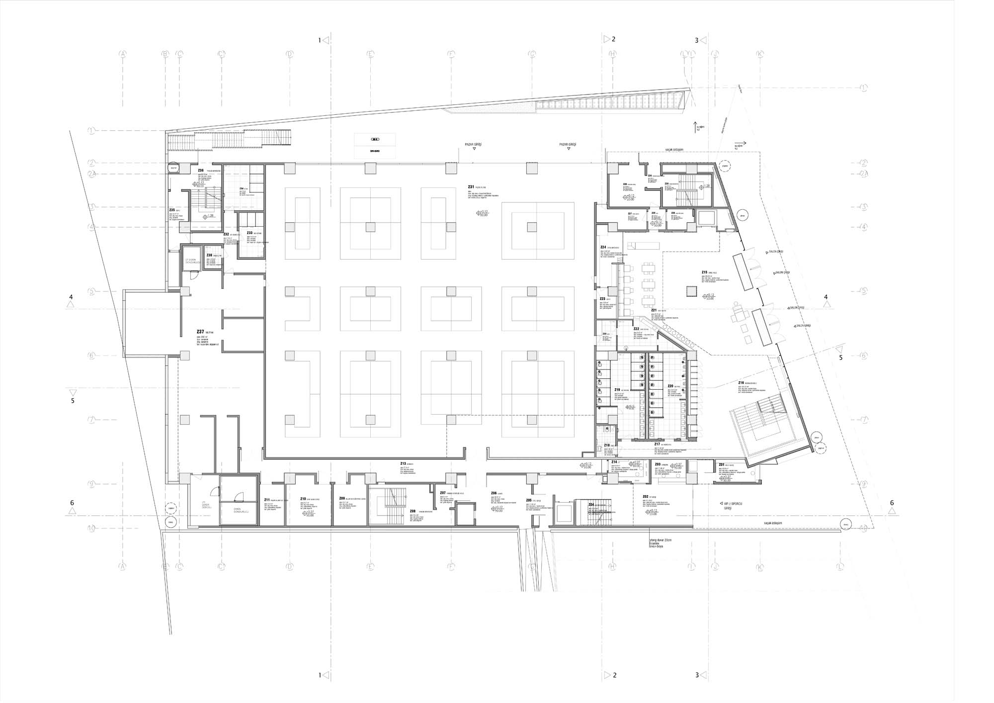
Complex İstanbul
Project Location: Bağcılar, İstanbul
Project Office: Atölye Kolektif
Project Type: Other Recreational Buildinds, Sports Hall, Cultural Center
Proje Tipi Grubu: Commercial
Tasarım Ekibi: Evrim Akcan, Arif Bıltır, Emre Torbaoğlu
Employer: Sporting Work
Consultant: Elif Özdemir
Yardımcı: Ecem Kurum, Maya Başdal, Canan Cansu Caner
Ana Yüklenici: YLG Çelik
Projcet Manager: Evrim Akcan
Structural Project: Epas Mühendislik
Mechanical Project: VRG Consultancy
Electrical Project: RT Proje
Çelik Projesi: YLG Çelik
Acoustic Consultant: Önder Çakı
Fire Safety Consultant: Taner Kaboğlu
Architectural Supervision: Emre Torbaoğlu
Construction Site Manager: Koray Canlı
Project Start Date: 2017
Project End Date: 2017
Construction Start Date: 2017
Construction End Date: 2019
Building Plot Area: 4.500 m2
Total Construction Area: 12.000 m2