38/45
Paylaş
Resmi Orjinal Boyutunda Göster
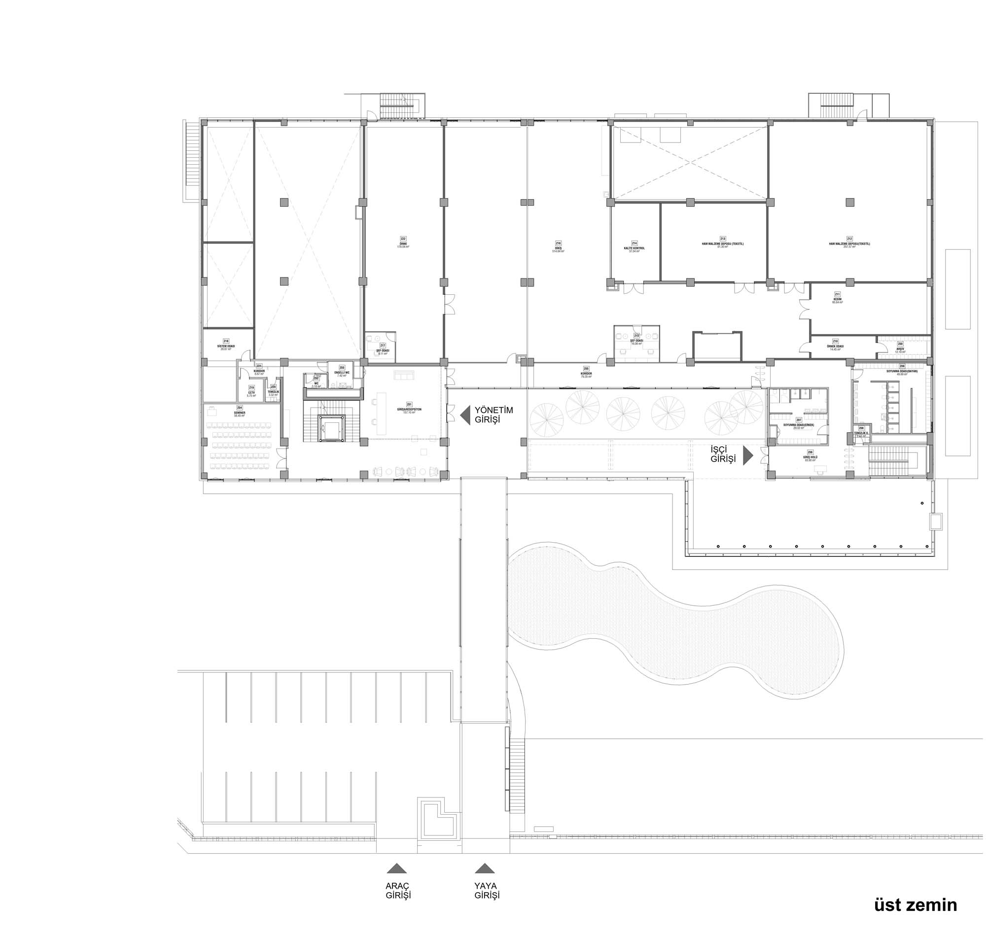
Arden Medikal Fabrika
Proje Yeri: Ankara, Kazan
Proje Ofisi: VEN Mimarlık
Proje Tipi: Fabrika
Proje Tipi Grubu: Endüstriyel
Tasarım Ekibi: Gül Güven, Fatih Erduman, Ceren Demircan, İrem Kılıç, Gamze Güven
İşveren: Arden Medikal
Ana Yüklenici: Mine İlhan, Arden Medikal
Peyzaj Mimarlığı: Promim Çevre Düzenleme, Kentsel Tasarım
Statik Projesi: Özün Proje
Mekanik Projesi: Ünlü Mühendislik
Elektrik Projesi: Yurdakul Mühendislik
Fotoğraf: Gürkan Akay
Mimari Mesleki Kontrollük: Kübra KABOĞLU
Şantiye Yöneticisi: Irmak Yapı
Proje Başlangıç Yılı: 2017
Proje Bitiş Yılı: 2018
İnşaat Başlangıç Yılı: 2018
İnşaat Bitiş Yılı: 2019
Arsa Alanı: 10,000 m²
Toplam İnşaat Alanı: 6,130 m²