9/11
Paylaş
Resmi Orjinal Boyutunda Göster
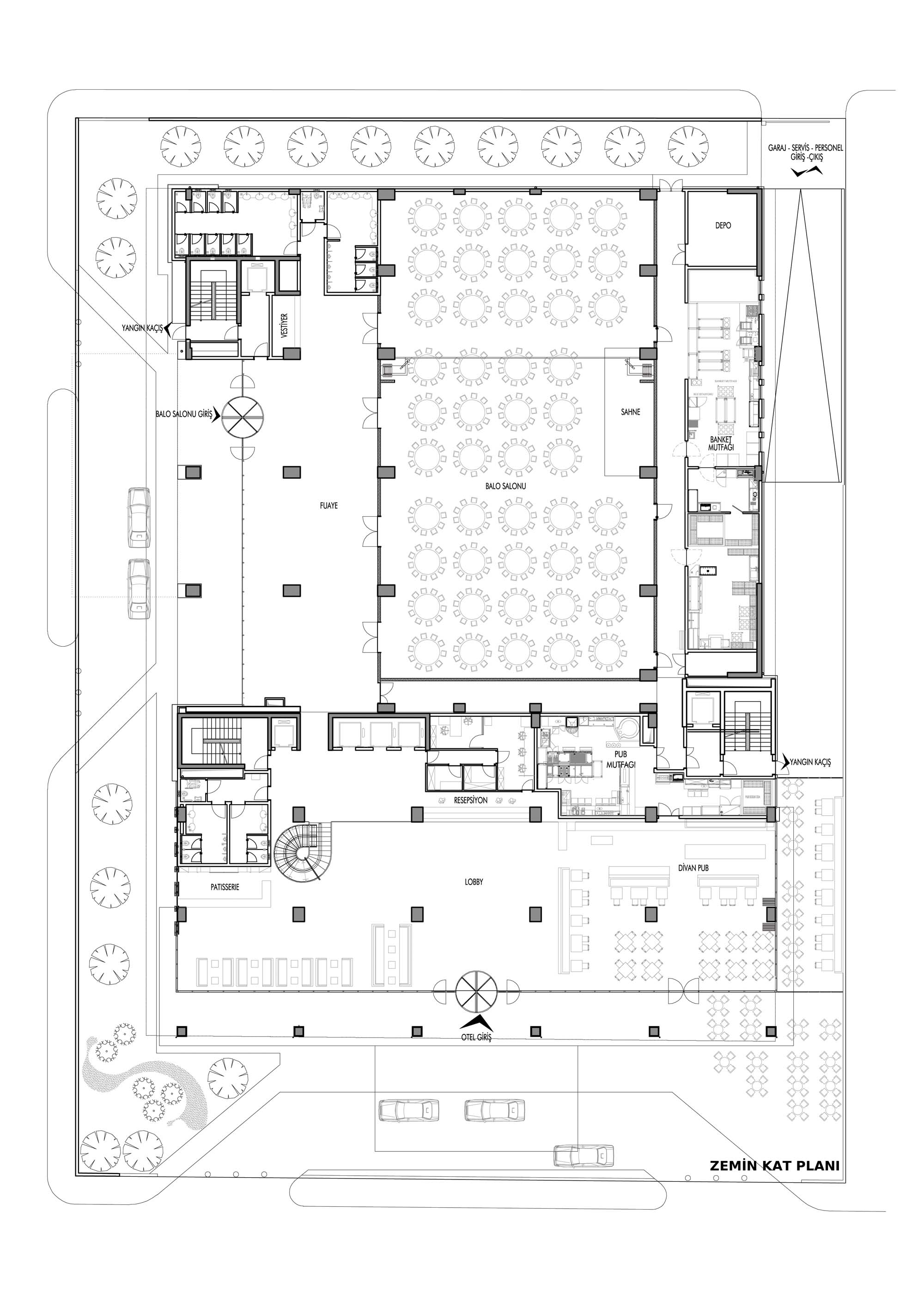
Divan Otel Diyarbakır
Project Location: Diyarbakır
Project Office: Uludağ Mimarlık
Project Type: Hotel / Motel
Proje Tipi Grubu: Konaklama
Tasarım Ekibi: Orhan Uludağ, Zeynep Uludağ
Employer: Tigris Turizm ve Ticaret
Yardımcı: Remzi Baştürk
Ana Yüklenici: Tigris Turizm ve Ticaret
Interior Architecture: Uludağ Mimarlık, Profit Neşe Güne Tasarım Stüdyosu
Structural Project: Bülent ERBORA
Mechanical Project: Bünyamin Ünlü
Electrical Project: Kemal Aykaç
Project Start Date: 2012
Project End Date: 2015
Construction Start Date: 2014
Construction End Date: 2019
Building Plot Area: 1.027 m2
Total Construction Area: 23.780 m2