8/9
Paylaş
Resmi Orjinal Boyutunda Göster
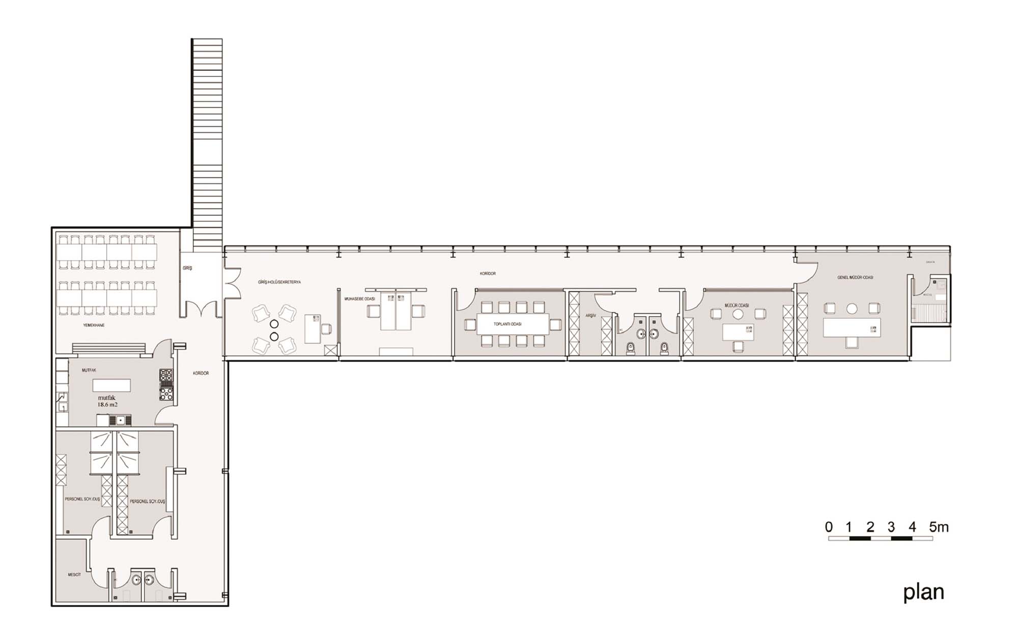
DMSB Altınova Soğuk Hava Deposu Ek Ofis Binası
Proje Yeri: Yalova, Altınova
Proje Tipi: Ofis
Proje Tipi Grubu: Ticari
Tasarım Ekibi: İbrahim Türkeri
Yardımcı: Gönül Karademir
Ana Yüklenici: Mahmut Aydın
Uygulama Projesi: İbrahim Türkeri, Gönül Karademir
Fotoğraf: İbrahim Türkeri
Mimari Mesleki Kontrollük: İbrahim Türkeri
Şantiye Yöneticisi: Mahmut Aydın
Proje Başlangıç Yılı: 2017
Proje Bitiş Yılı: 2018
İnşaat Başlangıç Yılı: 2018
İnşaat Bitiş Yılı: 2019
Arsa Alanı: 12,000 m²
Toplam İnşaat Alanı: 730 m²