38/38
Paylaş
Resmi Orjinal Boyutunda Göster
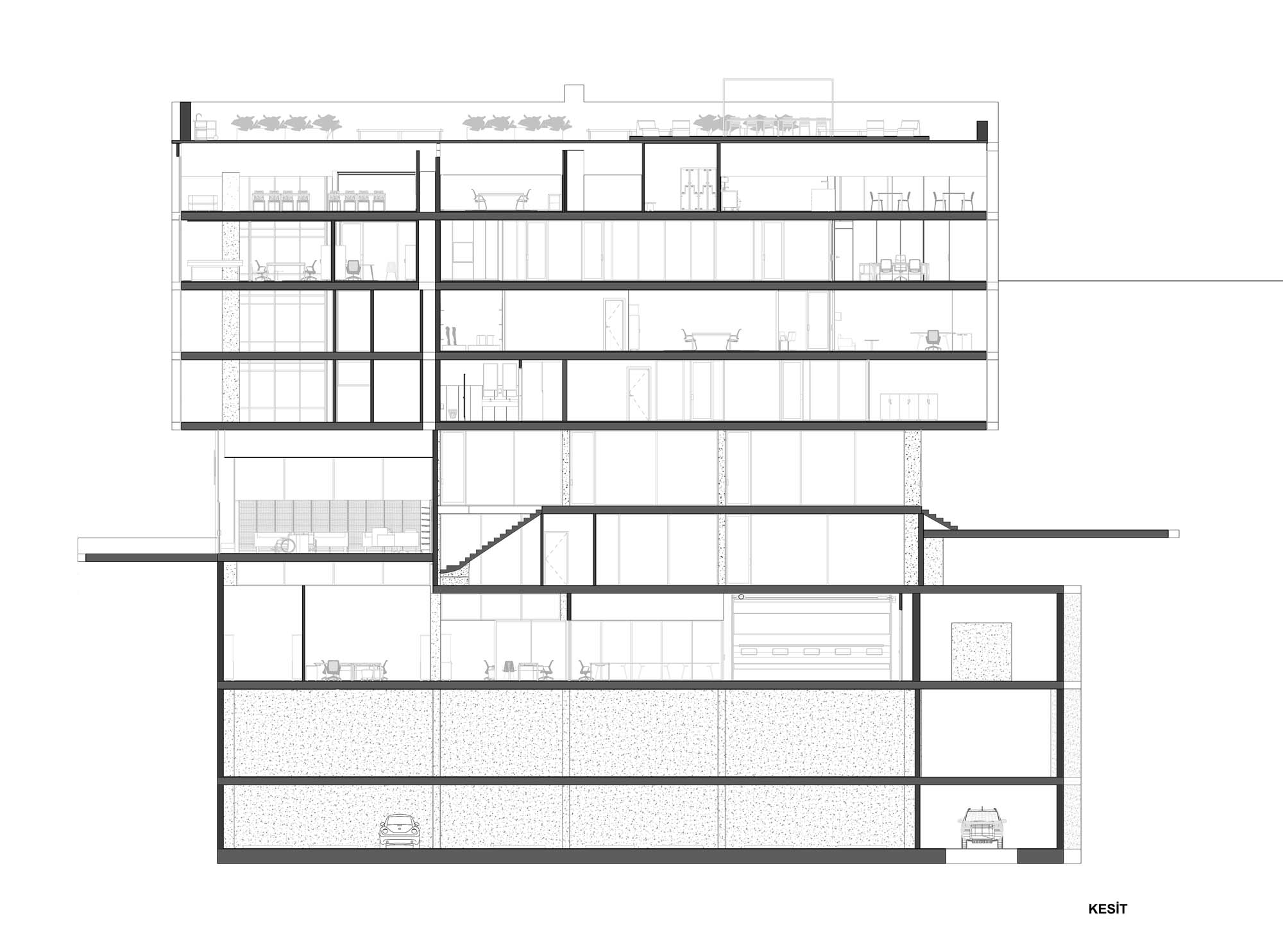
Elsa Ortopedi Rehabilitasyon Yönetim Binası
Proje Yeri: Ankara, Çankaya
Proje Ofisi: VEN Mimarlık
Proje Tipi: Ofis
Proje Tipi Grubu: Ticari
Tasarım Ekibi: Gül Güven, Figen Zorlu, Gamze Güven
İşveren: Elsa Ortopedi Rehabilitasyon ve Spor İç ve Dış Ticaret
Ana Yüklenici: Irmak Yapı
Peyzaj Mimarlığı: Promim Çevre Düzenleme, Kentsel Tasarım
Grafik Tasarım: Abrakadabra Tasarım ve Reklam
Mekanik Projesi: Setes Mühendislik
Elektrik Projesi: Proma Mühendislik
Fotoğraf: Gürkan Akay
Mimari Mesleki Kontrollük: Kübra KABOĞLU
Şantiye Yöneticisi: Irmak Yapı
Proje Başlangıç Yılı: 2018
Proje Bitiş Yılı: 2018
İnşaat Başlangıç Yılı: 2018
İnşaat Bitiş Yılı: 2019
Toplam İnşaat Alanı: 1.091 m²