18/24
Paylaş
Resmi Orjinal Boyutunda Göster
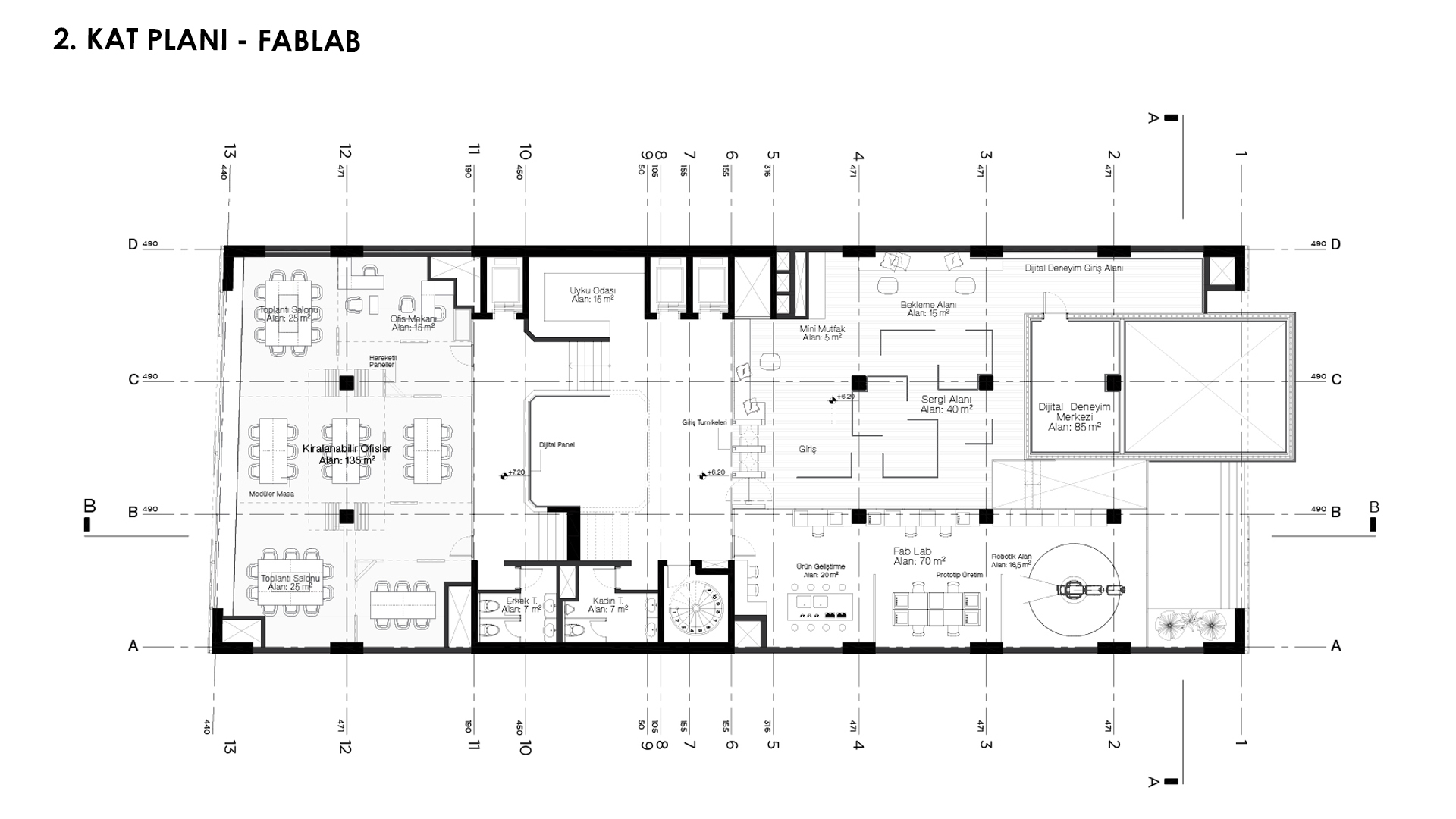
2. Ödül, İzmir Ticaret Odası Binası Yenileme Fikir Projesi Yarışması
Proje Yeri: İzmir
Proje Tipi: Ofis
Proje Tipi Grubu: 2. Ödül
Tasarım Ekibi: Burçin Demirci, Yenal Akgün, Melis Varkal
Danışman: Mustafa Gökhan Çelikağ, Alpay Demirci, Buğra Eser, Kerem Yeşildağ
Yardımcı: Büşra Bülbül, Barış Can Yılmaz, Begüm Kocabalkanlı