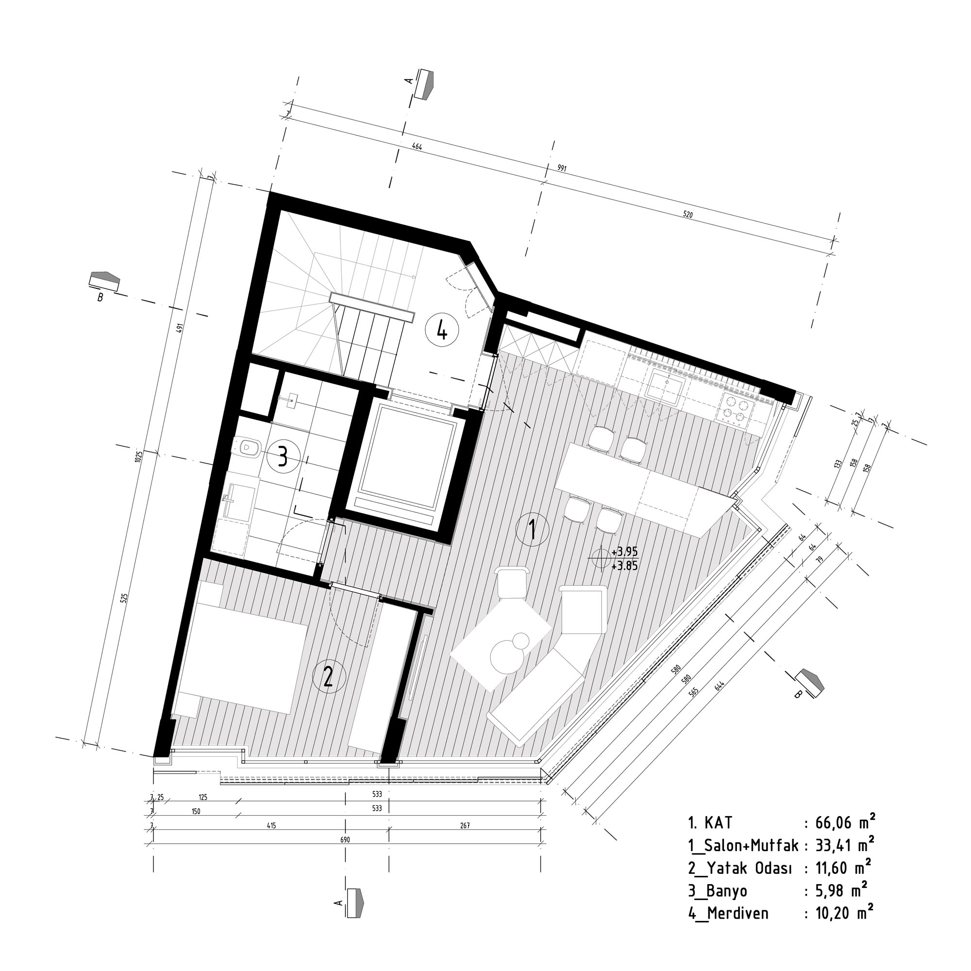
26 plan kat-1
26/35
Paylaş
Resmi Orjinal Boyutunda Göster
Galata Apartmanı
Proje Yeri: Beyoğlu, İstanbul
Proje Ofisi: WE're
Proje Tipi: Apartman
Proje Tipi Grubu: Konut
Tasarım Ekibi: Burak Yardımcı, Ali Önalp, Özgür Koç
Mimari Proje Ekibi: Burak Koç, Hüseyin Kadıoğlu, Merve Şimşek
İşveren: Semih Şimşek, Ercan Kanber
Ana Yüklenici: Tebdil-i Mekan Mimarlık, Neska Mimarlık
İç Mekan Projesi: WE're
Proje Yöneticisi: Burak Yardımcı
Konsept Tasarımı: WE're
Uygulama Projesi: WE're
Cephe Tasarımı: WE're
Statik Projesi: Neska Mimarlık, Doruk Mühendislik
Mekanik Projesi: Bera Mühendislik, Tebdil-i Mekan Mimarlık
Elektrik Projesi: Yılmazlar Mühendislik, Tebdil-i Mekan Mimarlık
Tesisat Projesi: Bera Mühendislik, Tebdil-i Mekan Mimarlık
Çelik Projesi: Doruk Mühendislik
Fotoğraf: ALTKAT Architectural Photography
Mimari Mesleki Kontrollük: WE're
Proje Başlangıç Yılı: 2016
Proje Bitiş Yılı: 2019
İnşaat Başlangıç Yılı: 2017
İnşaat Bitiş Yılı: 2019
Arsa Alanı: 71 m²
Toplam İnşaat Alanı: 365 m2