z4
13/13
Paylaş
Resmi Orjinal Boyutunda Göster
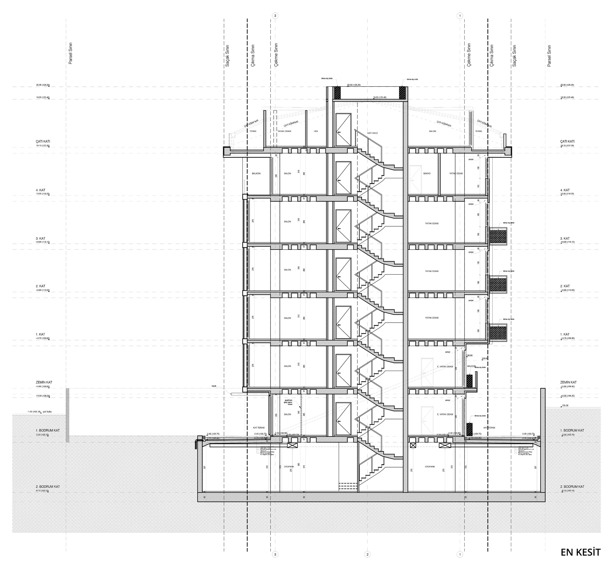
İstiridye Apartmanı
Project Location: İstanbul
Project Office: CM Mimarlık
Project Type: Apartment
Proje Tipi Grubu: Konut
Tasarım Ekibi: Cem Sorguç
Architectural Project Team: Sezin Ergene, Deniz Gezgin
Employer: RAM Gayrimenkul
Ana Yüklenici: RAM Gayrimenkul
Peyzaj Mimarlığı: Landworks