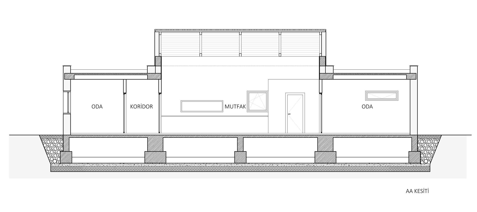
AA-Kesiti
9/14
Paylaş
Resmi Orjinal Boyutunda Göster
SH Evi
Project Location: Urla, İzmir
Project Office: Onurcan Çakır Mimarlık
Project Type: Single House
Proje Tipi Grubu: Konut
Tasarım Ekibi: Onurcan Çakır
Ana Yüklenici: SRC Yapı
Project Start Date: 2018
Project End Date: 2018
Construction Start Date: 2018
Construction End Date: 2019
Building Plot Area: 2.683 m2
Total Construction Area: 134 m2