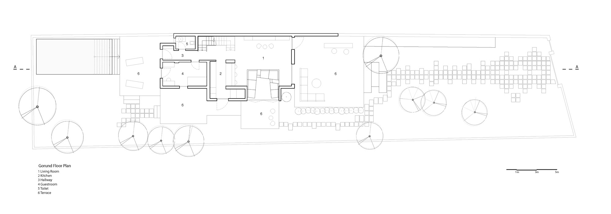
Stoa Drawings GroundFloorPlan
9/15
Paylaş
Resmi Orjinal Boyutunda Göster
Stoa Evi
Proje Yeri: Çeşme, İzmir
Proje Ofisi: Salon Alper Derinboğaz
Proje Tipi: Tek Ev / Villa
Proje Tipi Grubu: Konut
Tasarım Ekibi: Alper Derinboğaz
Mimari Proje Ekibi: Egemen Onur Kaya, Öykü Arda, Ömer Manav
Ana Yüklenici: MK Yapı Mühendislik, Mesut Köse
Peyzaj Mimarlığı: Praxis Landscape, Enise Burcu Derinboğaz
İç Mekan Projesi: Salon Alper Derinboğaz
Konsept Tasarımı: Salon Alper Derinboğaz
Uygulama Projesi: Salon Alper Derinboğaz
Statik Projesi: MK Yapı Mühendislik
Mekanik Projesi: MK Yapı Mühendislik
Elektrik Projesi: MK Yapı Mühendislik
Fotoğraf: Orhan Kolukısa, Yercekim Mimari Fotograf
Proje Başlangıç Yılı: 2018
Proje Bitiş Yılı: 2019
İnşaat Başlangıç Yılı: 2018
İnşaat Bitiş Yılı: 2019
Arsa Alanı: 360 m2
Toplam İnşaat Alanı: 180 m2