33/43
Paylaş
Resmi Orjinal Boyutunda Göster
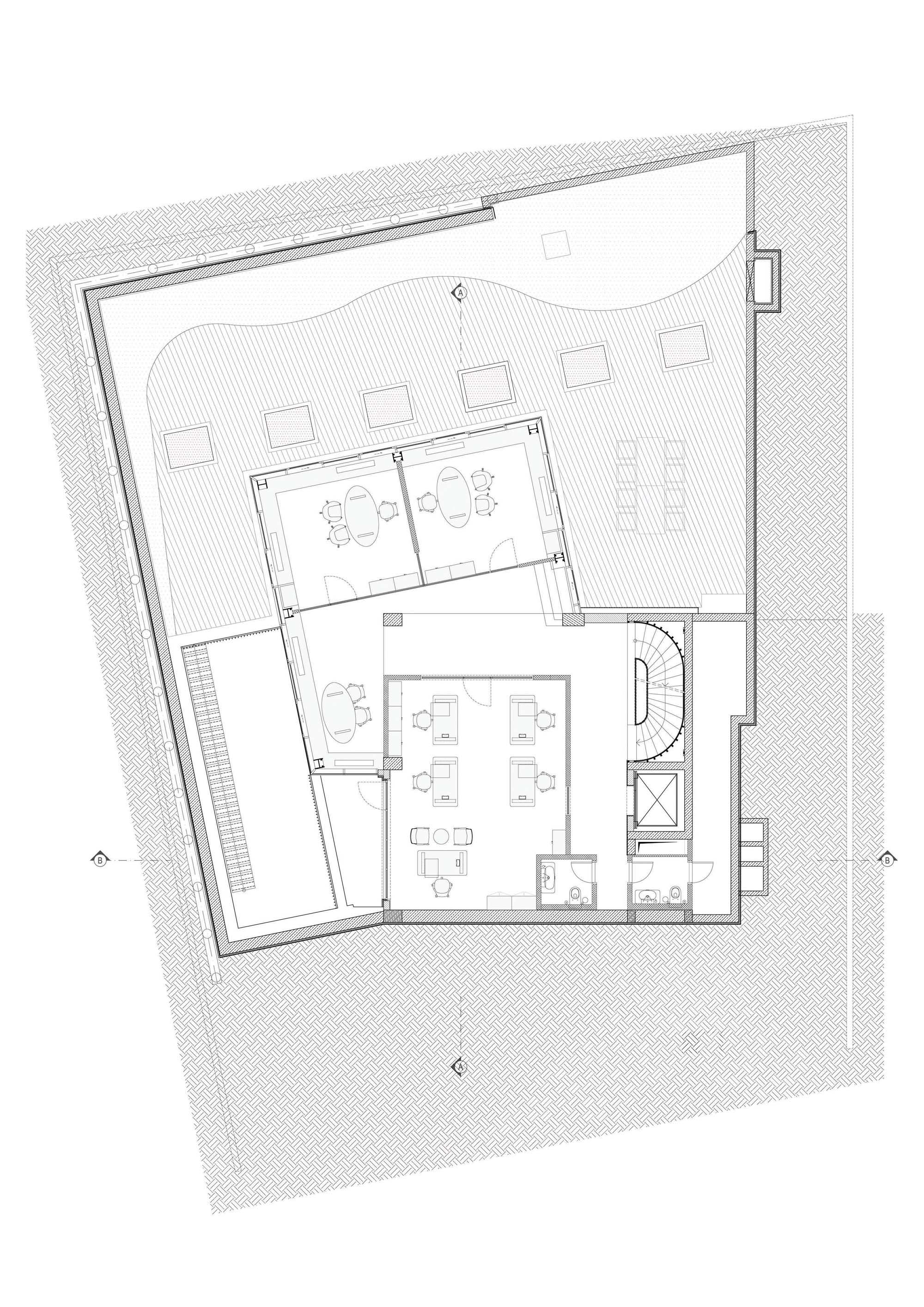
Süper Enerji Ofisi
Proje Yeri: İstanbul, Beşiktaş
Proje Ofisi: Erginoğlu & Çalışlar Mimarlık
Proje Tipi: Ofis
Proje Tipi Grubu: Ticari
Tasarım Ekibi: Kerem Erginoğlu, Hasan Çalışlar, Fatih Kariptaş, Özge Üstündağ, Selin Erdemirci, Hilal Kurt
İşveren: Süper Enerji
Ana Yüklenici: Orkon İnşaat, HAN mimarlık
Statik Projesi: 2E Dizayn Mühendislik
Mekanik Projesi: MEP Mekanik
Elektrik Projesi: Tasarım Proje Elektrik
Fotoğraf: Cemal Emden
Proje Başlangıç Yılı: 2016
Proje Bitiş Yılı: 2019
İnşaat Başlangıç Yılı: 2019
İnşaat Bitiş Yılı: 2019
Arsa Alanı: 700 m2