12/12
Paylaş
Resmi Orjinal Boyutunda Göster
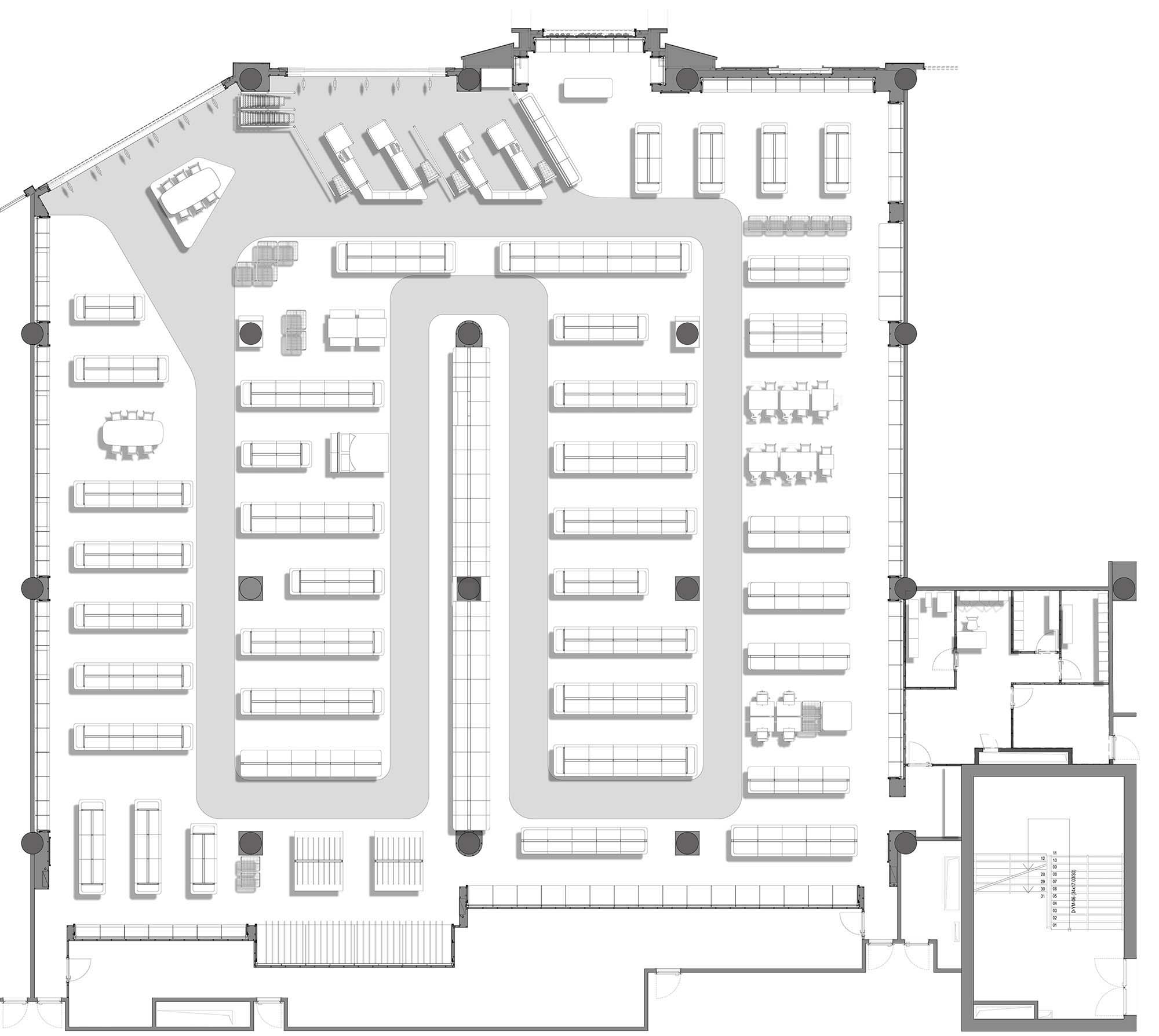
Evidea
Project Location: Ataşehir, İstanbul
Project Office: OSO Mimarlık
Project Type: Store / Showroom
Proje Tipi Grubu: Commercial
Tasarım Ekibi: Okan Bayık, Serhan Bayık, Ozan Bayık, Aylin Özdemir, Şevki Özger
Employer: Evidea
Photography: OSO Mimarlık
Project Start Date: 2019
Project End Date: 2019
Construction Start Date: 2019
Construction End Date: 2019
Total Construction Area: 1,450 m²