52/55
Paylaş
Resmi Orjinal Boyutunda Göster
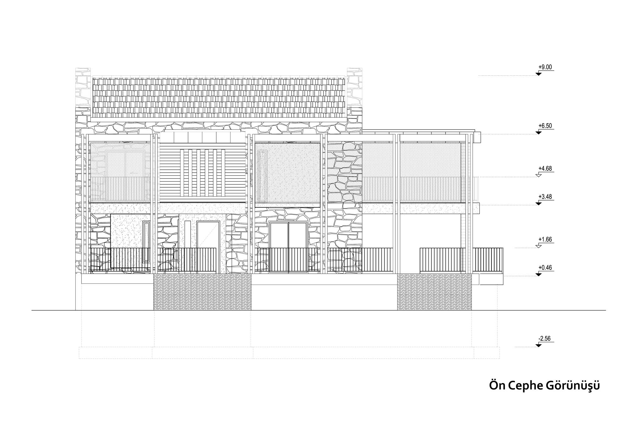
G Evi
Proje Yeri: İzmir
Proje Ofisi: PDG Mimarlar
Proje Tipi: Tek Ev / Villa
Proje Tipi Grubu: Konut
Tasarım Ekibi: Murat Şahin, Cengiz Gültek
İşveren: Günil İnşaat
Ana Yüklenici: Günil İnşaat
Statik Projesi: Akkor Yapı
Mekanik Projesi: PF Proje Mühendislik
Elektrik Projesi: Sgm Elektrik
Fotoğraf: Cemal Emden
Proje Başlangıç Yılı: 2019
Proje Bitiş Yılı: 2019
İnşaat Başlangıç Yılı: 2019
İnşaat Bitiş Yılı: 2019
Toplam İnşaat Alanı: 350 m²