41/46
Paylaş
Resmi Orjinal Boyutunda Göster
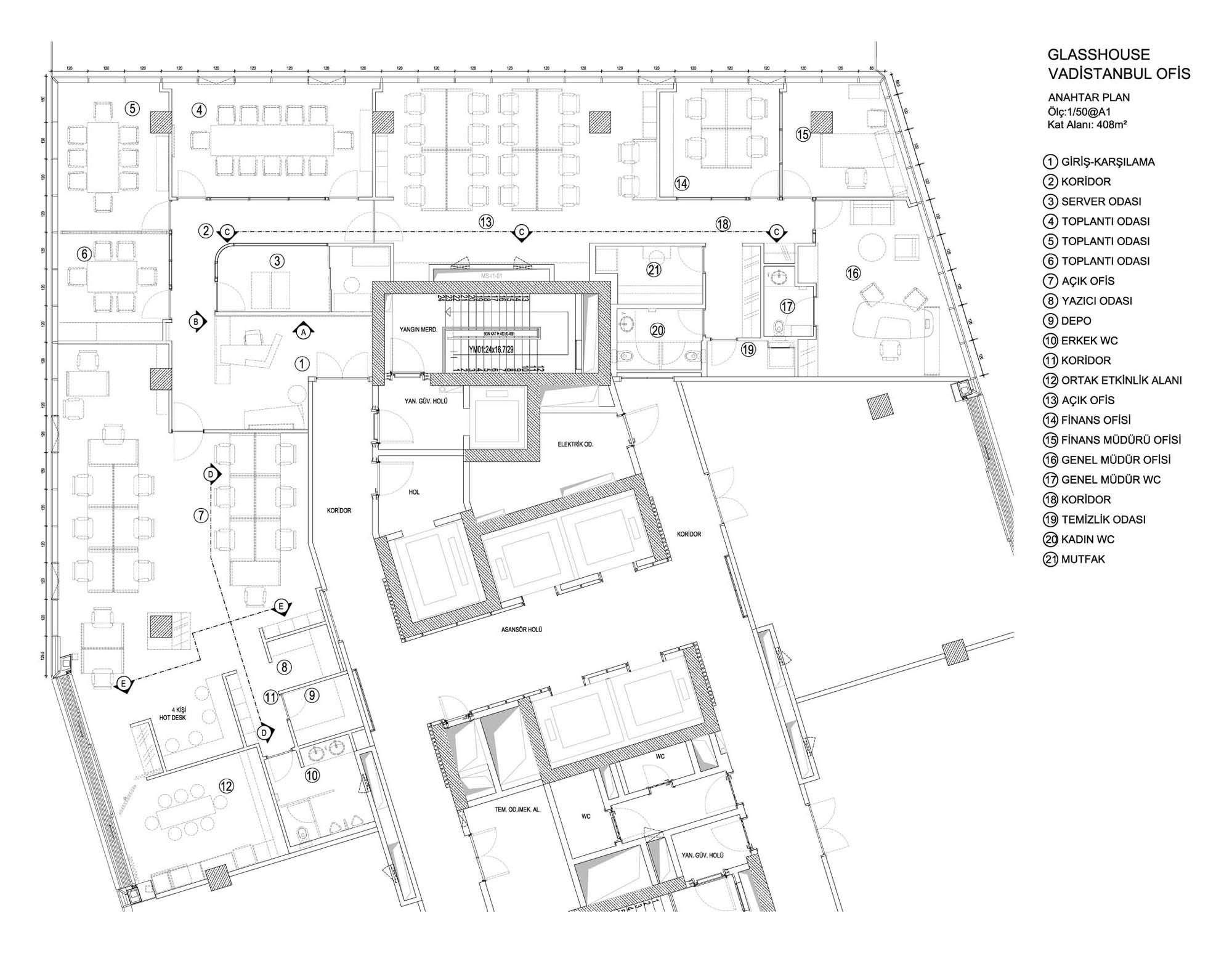
GlassHouse Vadistanbul Ofisi
Proje Yeri: İstanbul, Sarıyer
Proje Ofisi: Paker Mimarlık
Proje Tipi: Ofis
Proje Tipi Grubu: Ticari
Tasarım Ekibi: Sinan Paker, Zeynep Paker, Özgün Yılmaz
İşveren: GlassHouse
Ana Yüklenici: Paker Mimarlık
Proje Yöneticisi: Özgün Yılmaz
Grafik Tasarım: Özge Yılmaz
Tesisat Projesi: ACC MEKANİK
Fotoğraf: Yercekim Mimari Fotograf, Orhan Kolukısa
Şantiye Yöneticisi: Özgün Yılmaz
Proje Başlangıç Yılı: 2018
Proje Bitiş Yılı: 2018
İnşaat Başlangıç Yılı: 2018
İnşaat Bitiş Yılı: 2019
Toplam İnşaat Alanı: 408 m2