30/36
Paylaş
Resmi Orjinal Boyutunda Göster
IMD Narlife
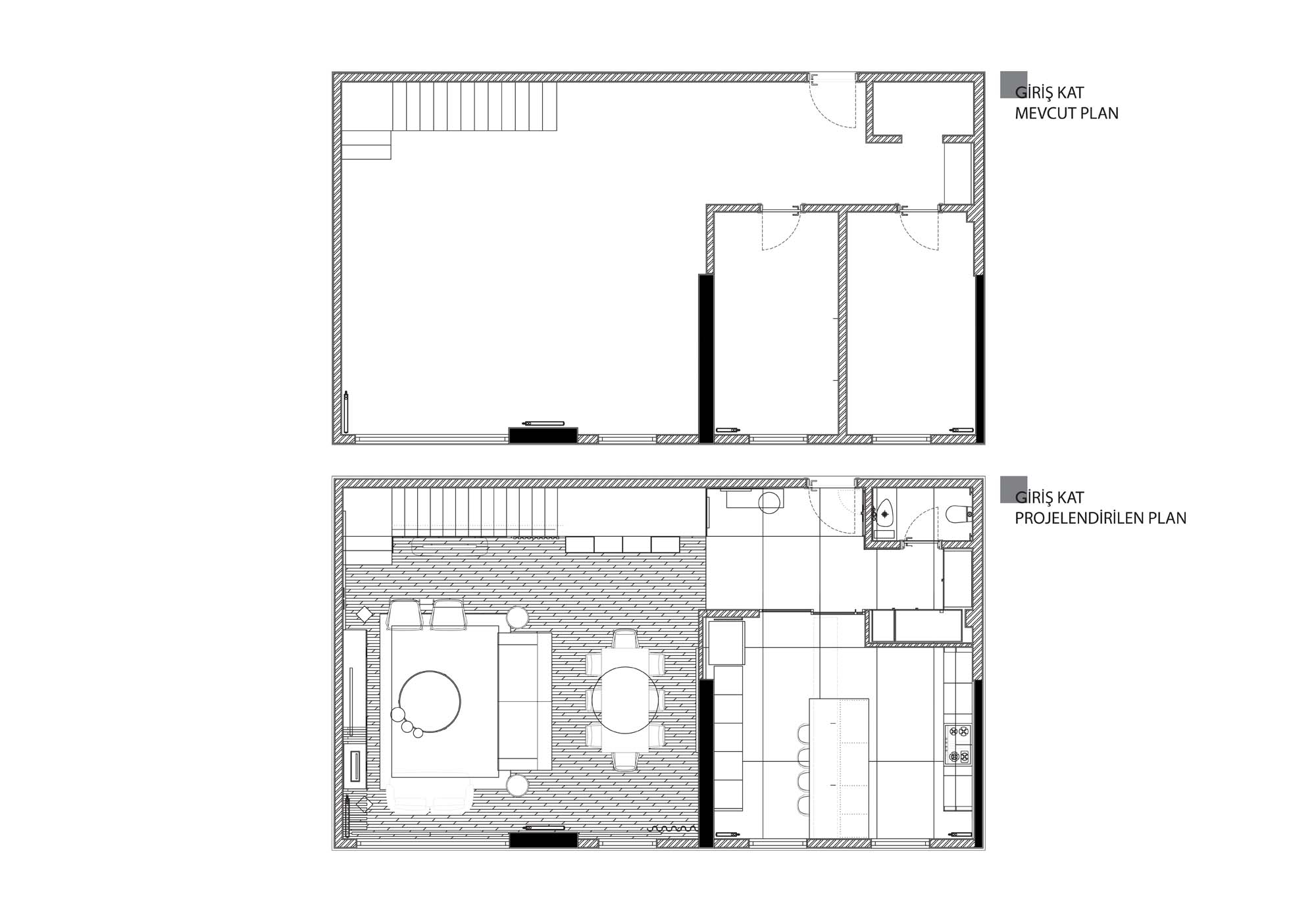
Proje Yeri: Maltepe, İstanbul
Proje Ofisi: Treso İç Mimarlık
Proje Tipi: Tek Ev / Villa
Proje Tipi Grubu: Konut
Tasarım Ekibi: Melda Dikmen Gürel
İşveren: Mert Demirel
Ana Yüklenici: Mert Demirel
Proje Başlangıç Yılı: 2018
Proje Bitiş Yılı: 2081
İnşaat Başlangıç Yılı: 2019
İnşaat Bitiş Yılı: 2019
Toplam İnşaat Alanı: 227 m2