12/15
Paylaş
Resmi Orjinal Boyutunda Göster
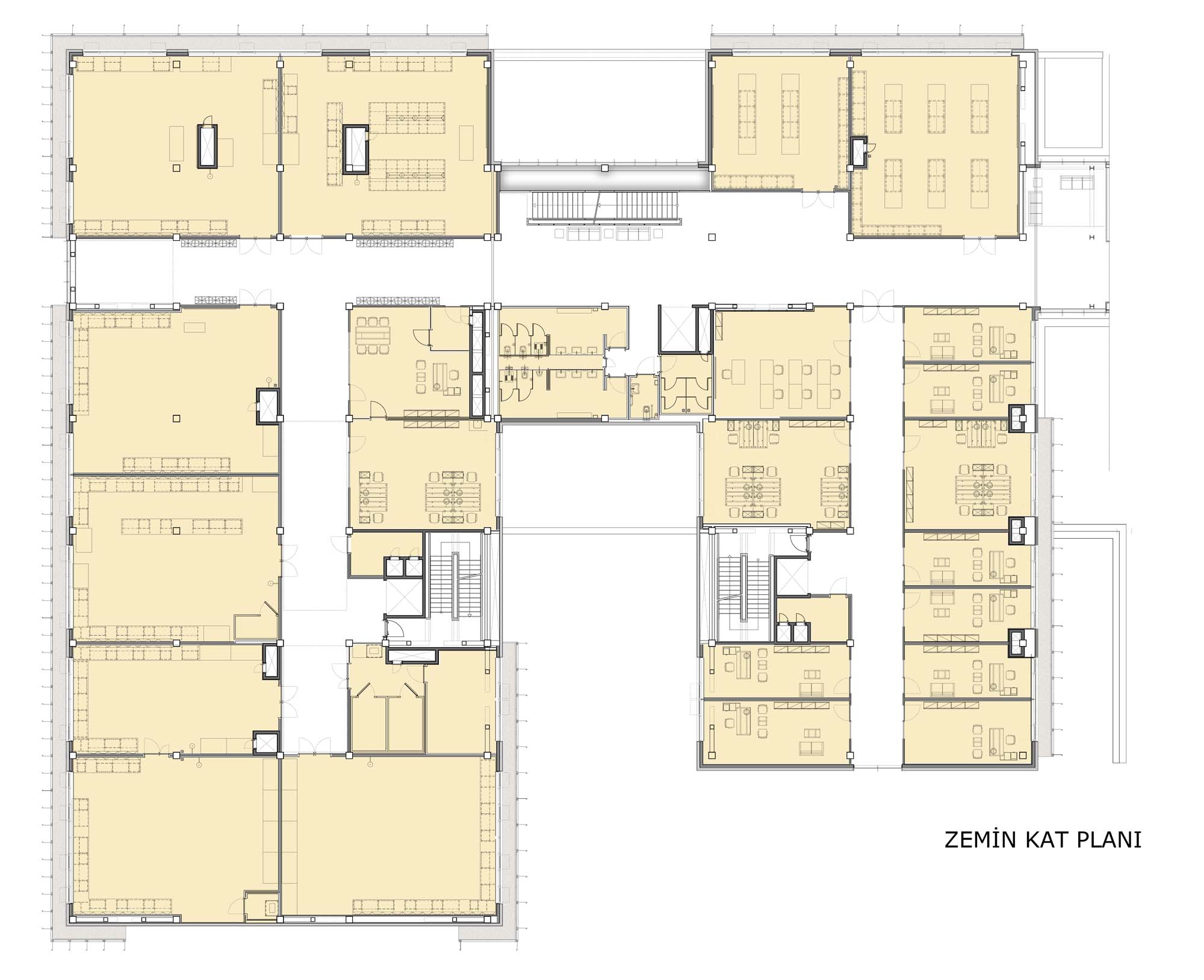
İTÜ İnşaat Fakültesi Ek Binası
Project Location: İstanbul, Şişli
Project Office: PAB Mimarlık
Project Type: Higher Education Building
Tasarım Ekibi: Pınar Gökbayrak, Ali Eray, Burçin Yıldırım
Employer: İTÜ Yapı İşleri Daire Başkanlığı
Yardımcı: C. Zeynep Ceylan, Eda Yeyman, Çağlar Yılmaz, Sezin Beldağ
Ana Yüklenici: Terminal – Demirkaya Ortaklığı
Structural Project: Nodus Mühendislik
Mechanical Project: Küp Mühendislik
Electrical Project: Küp Mühendislik
Project Start Date: 2013
Project End Date: 2014
Construction Start Date: 2015, 2019
Building Plot Area: 4.680 m²
Total Construction Area: 12500 m²