18/18
Paylaş
Resmi Orjinal Boyutunda Göster
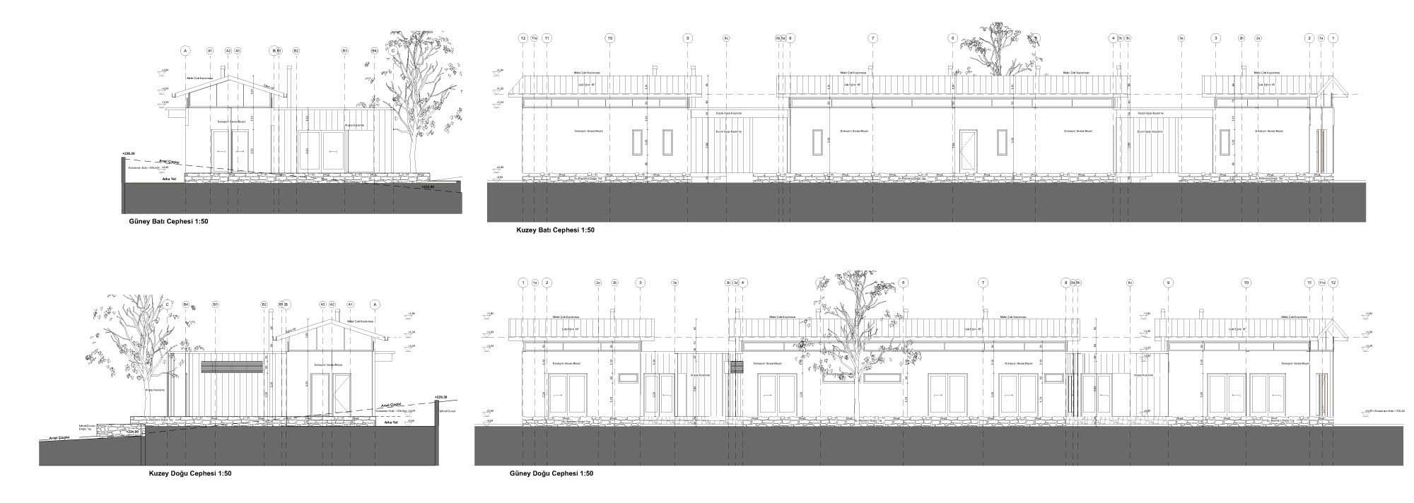
Kadıovacık Biyoevi
Proje Yeri: Urla, İzmir
Proje Ofisi: Eds-a Mimarlık
Proje Tipi: Tek Ev / Villa, Ekolojik Mimarlık
Proje Tipi Grubu: Konut
Tasarım Ekibi: Mehmet Şenol, And Akman
İşveren: Merve Titiz Akman
Danışman: Yapı Biyolojisi ve Ekolojisi Enstitüsü
Yardımcı: Merve Titiz Akman
Ana Yüklenici: Merve Titiz Akman
Proje Yöneticisi: And Akman
Proje Başlangıç Yılı: 2016
Proje Bitiş Yılı: 2017
İnşaat Başlangıç Yılı: 2018
İnşaat Bitiş Yılı: 2019
Arsa Alanı: 1325 m²
Toplam İnşaat Alanı: 226 m²