17/20
Paylaş
Resmi Orjinal Boyutunda Göster
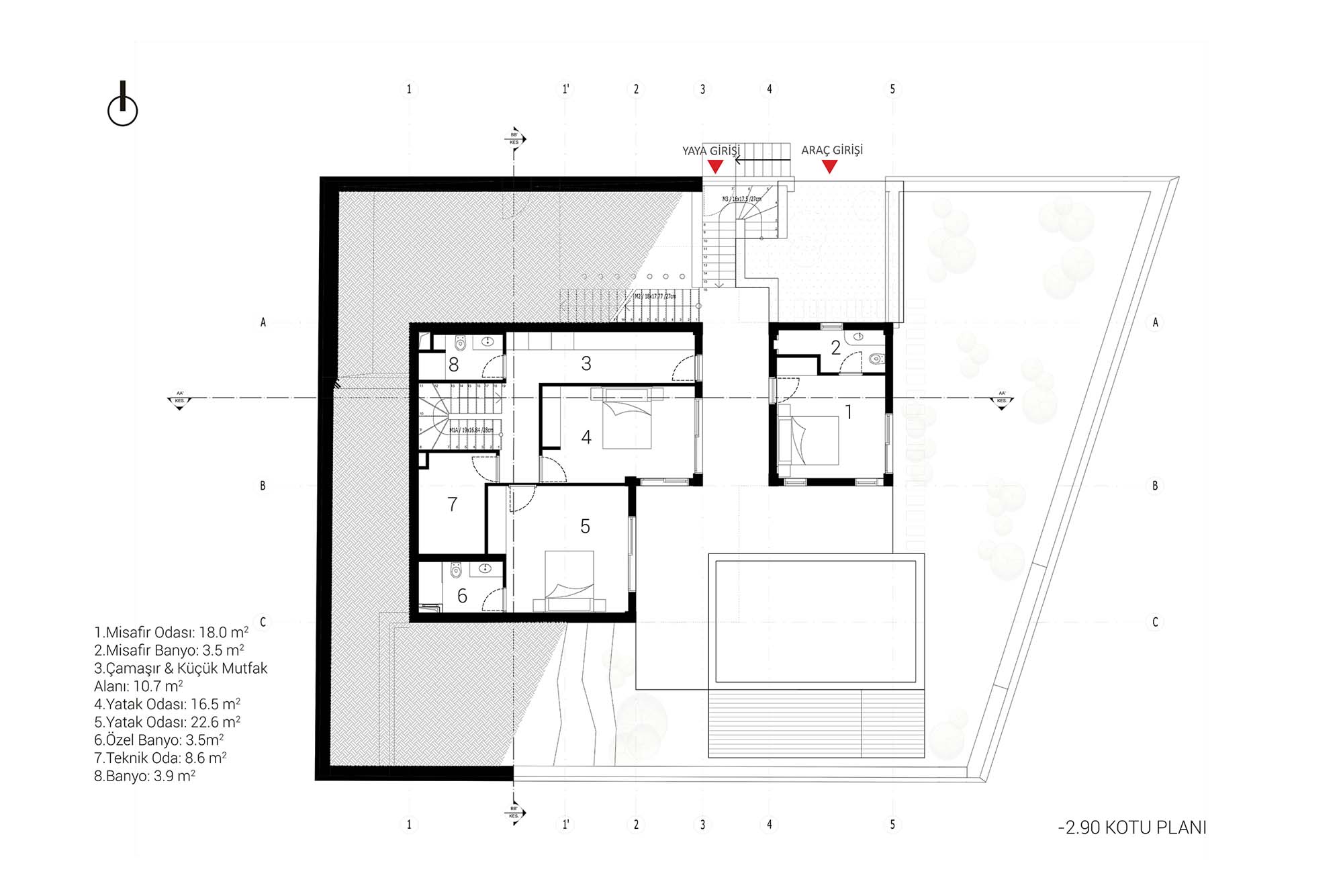
Karaburunda Ev
Proje Yeri: Karaburun, İzmir
Proje Ofisi: ofisvesaire
Proje Tipi: Tek Ev / Villa
Proje Tipi Grubu: Konut
Tasarım Ekibi: Melis Varkal, Mustafa Gökhan Çelikağ, Merve Köz, İlkan Birecikli, Taylan Küçükali
Ana Yüklenici: ofisvesaire
Statik Projesi: Varkal Mühendislik
Mekanik Projesi: Proje Fabrikası, NU Mühendislik
Elektrik Projesi: SGM MÜHENDİSLİK
Fotoğraf: Zeren + Mehmet Yasa Photography
Proje Başlangıç Yılı: 2017
Proje Bitiş Yılı: 2018
İnşaat Başlangıç Yılı: 2018
İnşaat Bitiş Yılı: 2019
Arsa Alanı: 490 m²
Toplam İnşaat Alanı: 320 m²